貸倉庫 貸倉庫 東京都江東区東雲 約70.50坪
基本情報
| 賃料/管理費 | 77.55 万円 / 232,650円 |
|---|---|
| 保証金・敷金 | 8ヶ月 |
| 礼金 | 1ヶ月 |
| 建物階 | 地上4階 |
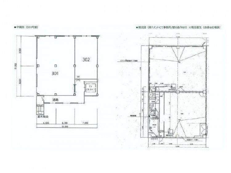
| 所在階 | 3階部分 |
| 住所 | 東京都 江東区 東雲 |
|---|---|
| 最寄り駅 |
りんかい線 東雲駅(徒歩7分)
|
| 最寄りインター | 首都高速道路「有明」ICより約1km |
| 構造 | 鉄骨鉄筋コンクリート |
| 面積 | 70.50 坪 (233.05㎡) |
詳細物件情報
| こだわり条件 |
|
|---|---|
| 更新料 | 旧賃料 1ヶ月 |
| 償却 | 解約時2ヶ月 |
| 接道 | -- |
| 幅員 | -- |
| 都市計画 | -- |
| 用途地域 | 準工業地域 |
| 築年数 | 1991年4月 |
| 現状 | 空 |
| 引渡日 | 即時 |
| 取引様態 |
不動産会社様にはご紹介できない物件です。 媒介 |
| 物件詳細 | -- |
|---|
この物件に問い合わせる
※お問い合わせの際は管理番号(00725869)をお伝えください。
所在地
他の物件も見てみる
同じ地域の他物件を探す
2階一部・リフト使用・床1.5t/㎡
貸倉庫
相談
549.98坪
2階一部・リフト使用・床1.5t/㎡
2階一部・自走可・低床・床2t/㎡
貸倉庫
相談
479.99坪
2階一部・自走可・低床・床2t/㎡
貸工場 東京都江東区深川 約37.72坪
貸工場
71.50
万円
37.72坪
貸工場 東京都江東区深川 約37.72坪
貸倉庫 東京都江東区枝川 約203.49坪
貸倉庫
253.00
万円
203.49坪
貸倉庫 東京都江東区枝川 約203.49坪
【定借】貸し倉庫・貸し事務所・貸し店舗 東京都江東区森下1 12.1坪
貸倉庫
貸店舗
27.50
万円
12.10坪
【定借】貸し倉庫・貸し事務所・貸し店舗 東京都江東区森下1 12.1坪
貸倉庫 東京都江東区亀戸 約462.90坪
貸倉庫
385.00
万円
462.90坪
貸倉庫 東京都江東区亀戸 約462.90坪
貸倉庫 東京都中央区新川 約115.75坪
貸倉庫
99.00
万円
115.75坪
貸倉庫 東京都中央区新川 約115.75坪
貸作業所 東京都江東区大島 約61.32坪
貸倉庫
貸工場
60.00
万円
61.32坪
貸作業所 東京都江東区大島 約61.32坪
4階・天井5.5m・床荷重1.5t(㎡)・3tリフト
貸倉庫
113.00
万円
100.00坪
4階・天井5.5m・床荷重1.5t(㎡)・3tリフト
貸し倉庫 東京都江東区塩浜2 約98.00坪
貸倉庫
107.80
万円
98.00坪
貸し倉庫 東京都江東区塩浜2 約98.00坪
おすすめ
【定借】貸し倉庫・貸し工場 埼玉県所沢市大字山口 211.75坪
貸倉庫
貸工場
80.00
万円
211.75坪
【定借】貸し倉庫・貸し工場 埼玉県所沢市大字山口 211.75坪
貸し倉庫 埼玉県さいたま市岩槻区掛(NA棟3階) 605.60坪
貸倉庫
242.24
万円
605.61坪
貸し倉庫 埼玉県さいたま市岩槻区掛(NA棟3階) 605.60坪
【定借】貸 し倉庫 神奈川県海老名市本郷 145.20坪
貸倉庫
99.00
万円
145.20坪
【定借】貸 し倉庫 神奈川県海老名市本郷 145.20坪
★新築★貸し倉庫 埼玉県川口市新堀 179.68坪
貸倉庫
158.40
万円
179.69坪
★新築★貸し倉庫 埼玉県川口市新堀 179.68坪
貸し倉庫・貸し事務所 東京都板橋区前野町1 107坪
貸倉庫
貸事務所
29.80
万円
107.00坪
貸し倉庫・貸し事務所 東京都板橋区前野町1 107坪
