貸倉庫 貸倉庫 埼玉県所沢市南永井 約4497.33坪
基本情報
賃料/管理費 | 2,077.77 万円 / -- |
---|---|
保証金・敷金 | 3ヶ月 |
礼金 | 1ヶ月 |
建物階 | 地上5階 |
所在階 | -- |
住所 | 埼玉県 所沢市 南永井 |
---|---|
最寄り駅 |
--
|
最寄りインター | 関越自動車道「所沢」ICより約1.7km |
構造 | 鉄骨造 |
面積 | 4,497.33 坪 (14867.20㎡) |
詳細物件情報
こだわり条件 |
|
---|---|
定期借家契約 | あり(詳細は物件詳細を参照) |
償却 | 無し |
接道 | -- |
幅員 | -- |
都市計画 | 市街化調整区域 |
用途地域 | -- |
築年数 | 1990年8月 |
現状 | -- |
引渡日 | 契約後6ヶ月前後(応相談) |
取引様態 |
不動産会社様にはご紹介できない物件です。 -- |
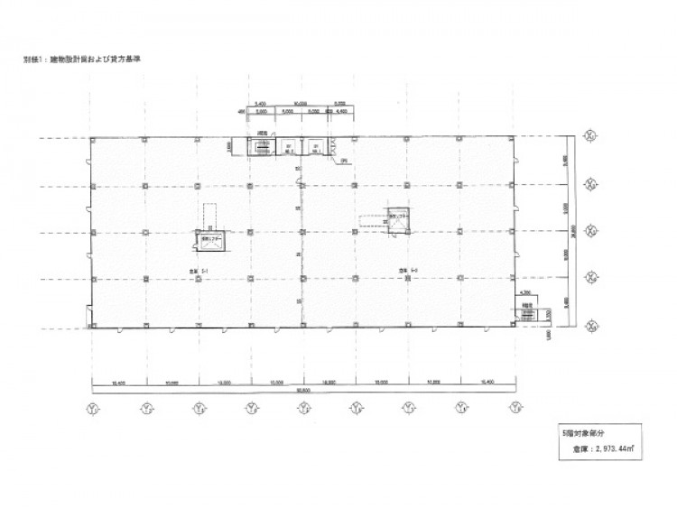
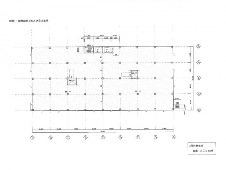
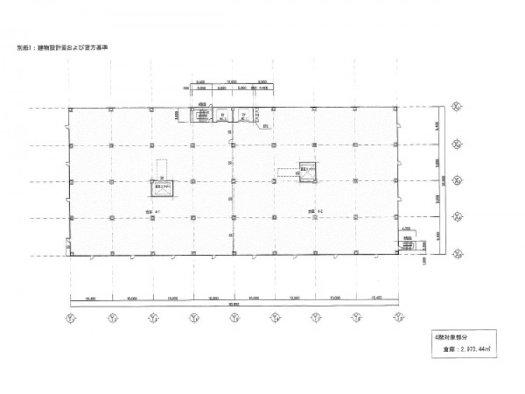
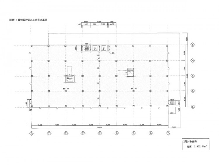
物件詳細 | 各階約899.466坪 荷物用EV3t×1基、人荷物用EV3t×1基、垂直搬送機1t×2基 床荷重:各階1t/㎡、高床式90cm 梁下高 1F~4F:5m、5F:4.6m、事務所:2.5m |
---|
この物件に問い合わせる

※お問い合わせの際は管理番号(00725899)をお伝えください。
所在地
他の物件も見てみる
同じ地域の他物件を探す
貸倉庫 埼玉県所沢市南永井 約49.91坪

貸倉庫
33.00
万円
49.91坪
貸倉庫 埼玉県所沢市南永井 約49.91坪
貸地 埼玉県所沢市北野新町 約559.62坪

土地
46.20
万円
559.63坪
貸地 埼玉県所沢市北野新町 約559.62坪
貸し店舗・貸し事務所・貸し倉庫 埼玉県所沢市狭山ヶ丘1 116.97坪

貸倉庫
貸店舗
55.00
万円
116.98坪
貸し店舗・貸し事務所・貸し倉庫 埼玉県所沢市狭山ヶ丘1 116.97坪
貸倉庫 埼玉県所沢市小手指南 約137.85坪

貸倉庫
99.00
万円
137.85坪
貸倉庫 埼玉県所沢市小手指南 約137.85坪
貸倉庫 埼玉県所沢市西住吉 約62.81坪

貸倉庫
52.00
万円
62.81坪
貸倉庫 埼玉県所沢市西住吉 約62.81坪
貸地 埼玉県所沢市大字中富 約202.61坪

土地
30.00
万円
202.61坪
貸地 埼玉県所沢市大字中富 約202.61坪
貸倉庫 埼玉県所沢市中富 約161.44坪

貸倉庫
46.20
万円
161.44坪
貸倉庫 埼玉県所沢市中富 約161.44坪
貸店舗 埼玉県所沢市北原町 約46.71坪

貸店舗
71.50
万円
46.71坪
貸店舗 埼玉県所沢市北原町 約46.71坪
貸作業所 埼玉県所沢市南永井 約150坪

貸倉庫
貸工場
77.00
万円
150.00坪
貸作業所 埼玉県所沢市南永井 約150坪
貸倉庫 埼玉県所沢市上安松 約60.50坪

貸倉庫
32.00
万円
60.50坪
貸倉庫 埼玉県所沢市上安松 約60.50坪
おすすめ
貸し事務所・貸し店舗 東京都板橋区板橋1 河野ビル1階 24.35坪
貸店舗
貸事務所
37.00
万円
24.35坪
貸し事務所・貸し店舗 東京都板橋区板橋1 河野ビル1階 24.35坪
貸し倉庫 埼玉県三郷市大広戸 1672.70坪

貸倉庫
883.19
万円
1,672.70坪
貸し倉庫 埼玉県三郷市大広戸 1672.70坪
貸し倉庫 東京都江戸川区松江1 2617.44坪

貸倉庫
1,749.00
万円
2,617.44坪
貸し倉庫 東京都江戸川区松江1 2617.44坪
【寄託】貸し倉庫 神奈川県川崎市東扇島 1000坪

貸倉庫
605.00
万円
1,000.00坪
【寄託】貸し倉庫 神奈川県川崎市東扇島 1000坪
貸し倉庫 埼玉県三郷市茂田井(B棟南側一部) 1263.5坪

貸倉庫
625.44
万円
1,263.50坪
貸し倉庫 埼玉県三郷市茂田井(B棟南側一部) 1263.5坪