貸倉庫 ★新築★【定借】貸し倉庫 埼玉県鶴ヶ島市高倉 449坪+事務所4.2坪
基本情報
| 賃料/管理費 | 558.66 万円 / -- |
|---|---|
| 保証金・敷金 | 3ヶ月 |
| 礼金 | 2ヶ月 |
| 建物階 | 平屋建て |
| 所在階 | 一棟 |
| 住所 | 埼玉県 鶴ヶ島市 高倉 |
|---|---|
| 最寄り駅 |
東武越生線 西大家駅(徒歩29分)
|
| 最寄りインター | -- |
| 構造 | 鉄骨造 |
| 面積 | 453.20 坪 (1498.18㎡) |
詳細物件情報
| こだわり条件 |
|
|---|---|
| 定期借家契約 | あり(詳細は物件詳細を参照) |
| 償却 | ナシ |
| 接道 | -- |
| 幅員 | -- |
| 都市計画 | 市街化調整区域 |
| 用途地域 | -- |
| 築年数 | 2026年10月 |
| 現状 | 建築中 |
| 引渡日 | 2026年10月 |
| 取引様態 | 媒介 |
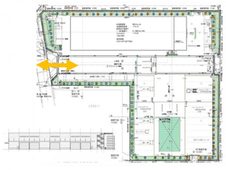
| 物件詳細 | ■20t・2.8t クレーン付き ■大型トラック 進入可能 ■低床倉庫 ■天井高:7.0m(クレーン下) ■シャッター:幅6.5m 高さ5.0m ■使用面積詳細/倉庫:1484.3㎡(449坪) 事務所:13.88㎡(4.2坪) 合計:1498.18㎡(453.2坪) |
|---|
この物件に問い合わせる
※お問い合わせの際は管理番号(00304189)をお伝えください。
所在地
他の物件も見てみる
同じ地域の他物件を探す
貸地 埼玉県鶴ヶ島市高倉 約602.12坪
土地
66.00
万円
602.13坪
貸地 埼玉県鶴ヶ島市高倉 約602.12坪
貸店舗 埼玉県鶴ヶ島市脚折町 約42.47坪
貸店舗
46.20
万円
42.47坪
貸店舗 埼玉県鶴ヶ島市脚折町 約42.47坪
貸事務所 埼玉県鶴ヶ島市町屋 約24.50坪
貸事務所
38.50
万円
24.50坪
貸事務所 埼玉県鶴ヶ島市町屋 約24.50坪
貸倉庫 埼玉県鶴ヶ島市脚折 約53.54坪
貸倉庫
33.00
万円
53.54坪
貸倉庫 埼玉県鶴ヶ島市脚折 約53.54坪
貸店舗・事務所 埼玉県鶴ヶ島市脚折町 約67坪
貸店舗
貸事務所
50.00
万円
67.95坪
貸店舗・事務所 埼玉県鶴ヶ島市脚折町 約67坪
おすすめ
貸し倉庫 東京都立川市西砂町2 98.94坪
貸倉庫
貸工場
66.00
万円
98.94坪
貸し倉庫 東京都立川市西砂町2 98.94坪
貸し事務所・貸し店舗 神奈川県平塚市明石町1 VERSE1平塚ビル(旧名称:太陽生命平塚ビル)7階 81.37坪
貸事務所
67.14
万円
81.37坪
貸し事務所・貸し店舗 神奈川県平塚市明石町1 VERSE1平塚ビル(旧名称:太陽生命平塚ビル)7階 81.37坪
貸し倉庫 埼玉県三郷市新和3 400坪
貸倉庫
184.80
万円
400.00坪
貸し倉庫 埼玉県三郷市新和3 400坪
【定借】貸し工場・貸し倉庫・貸し防音スタジオ 大田区仲池上2 151.11坪
貸倉庫
貸工場
220.00
万円
154.11坪
【定借】貸し工場・貸し倉庫・貸し防音スタジオ 大田区仲池上2 151.11坪
★新築★貸し倉庫 埼玉県川口市新堀 179.68坪
貸倉庫
158.40
万円
179.69坪
★新築★貸し倉庫 埼玉県川口市新堀 179.68坪
