貸店舗 貸店舗 埼玉県鴻巣市天神 約201.23坪
基本情報
| 賃料/管理費 | 165.00 万円 / -- |
|---|---|
| 保証金・敷金 | 6ヶ月 |
| 礼金 | 1ヶ月 |
| 建物階 | 地上2階 |
| 所在階 | -- |
| 住所 | 埼玉県 鴻巣市 天神 |
|---|---|
| 最寄り駅 |
--
|
| 最寄りインター | -- |
| 構造 | 鉄骨造 |
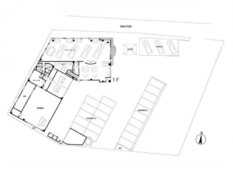
| 面積 | 201.24 坪 (665.24㎡) |
詳細物件情報
| こだわり条件 |
|
|---|---|
| 更新料 | 新賃料 1ヶ月 |
| 償却 | 無し |
| 接道 | -- |
| 幅員 | -- |
| 都市計画 | -- |
| 用途地域 | 第一種住居地域 |
| 築年数 | 1996年3月 |
| 現状 | -- |
| 引渡日 | 2026年4月以降相談 |
| 取引様態 |
不動産会社様にはご紹介できない物件です。 -- |
| 物件詳細 | 1階:約557.47㎡、2階:約107.77㎡ |
|---|
この物件に問い合わせる
※お問い合わせの際は管理番号(00726137)をお伝えください。
所在地
他の物件も見てみる
同じ地域の他物件を探す
貸店舗 埼玉県鴻巣市人形 約203.31坪
貸店舗
121.00
万円
203.31坪
貸店舗 埼玉県鴻巣市人形 約203.31坪
貸倉庫 埼玉県鴻巣市上谷 約294.85坪
貸倉庫
103.84
万円
294.85坪
貸倉庫 埼玉県鴻巣市上谷 約294.85坪
貸し倉庫・貸し工場 埼玉県鴻巣市上谷 63.43坪
貸倉庫
貸工場
16.50
万円
63.43坪
貸し倉庫・貸し工場 埼玉県鴻巣市上谷 63.43坪
貸倉庫 埼玉県鴻巣市人形 約210.42坪
貸倉庫
77.00
万円
210.42坪
貸倉庫 埼玉県鴻巣市人形 約210.42坪
貸倉庫 埼玉県鴻巣市上生出塚 約750.56坪
貸倉庫
247.50
万円
750.56坪
貸倉庫 埼玉県鴻巣市上生出塚 約750.56坪
おすすめ
貸し倉庫・貸し店舗 埼玉県久喜市久喜東 210.54坪
貸倉庫
貸店舗
110.00
万円
210.54坪
貸し倉庫・貸し店舗 埼玉県久喜市久喜東 210.54坪
貸し倉庫 東京都江戸川区篠崎町5 53.02坪
貸倉庫
66.00
万円
53.03坪
貸し倉庫 東京都江戸川区篠崎町5 53.02坪
【定借】貸し倉庫 千葉県佐倉市太田 400坪(スペース貸)
貸倉庫
198.00
万円
400.00坪
【定借】貸し倉庫 千葉県佐倉市太田 400坪(スペース貸)
貸し事務所・貸し倉庫 東京都大田区東海3(東海ビル5F) 36.07坪
貸事務所
29.70
万円
36.08坪
貸し事務所・貸し倉庫 東京都大田区東海3(東海ビル5F) 36.07坪
【定借】貸し倉庫 東京都町田市小山町 293.14坪
貸倉庫
225.50
万円
293.15坪
【定借】貸し倉庫 東京都町田市小山町 293.14坪
