貸店舗 貸店舗 千葉県八街市八街に 約200.59坪
基本情報
| 賃料/管理費 | 66.00 万円 / -- |
|---|---|
| 保証金・敷金 | 6ヶ月 |
| 礼金 | 1ヶ月 |
| 建物階 | 平屋建て |
| 所在階 | -- |
| 住所 | 千葉県 八街市 八街に |
|---|---|
| 最寄り駅 |
JR総武本線 八街駅(徒歩29分)
|
| 最寄りインター | -- |
| 構造 | 鉄骨造 |
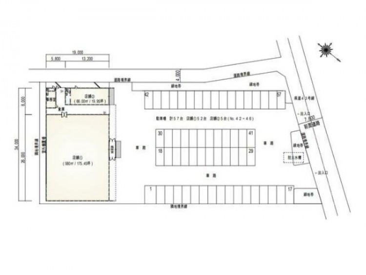
| 面積 | 200.59 坪 (663.10㎡) |
詳細物件情報
| こだわり条件 |
|
|---|---|
| 更新料 | -- |
| 償却 | 無し |
| 接道 | 一方 |
| 幅員 | 東側 公道約7.6m |
| 都市計画 | -- |
| 用途地域 | 無指定 |
| 築年数 | 1998年3月 |
| 現状 | 空 |
| 引渡日 | 相談 |
| 取引様態 |
不動産会社様にはご紹介できない物件です。 -- |
| 物件詳細 | -- |
|---|
この物件に問い合わせる
※お問い合わせの際は管理番号(00726455)をお伝えください。
所在地
他の物件も見てみる
同じ地域の他物件を探す
貸店舗 千葉県八街市八街ほ 約62.50坪
貸店舗
95.70
万円
62.50坪
貸店舗 千葉県八街市八街ほ 約62.50坪
貸し倉庫・貸し作業所 千葉県八街市山田台(No.3号) 26.66坪
貸倉庫
19.80
万円
26.67坪
貸し倉庫・貸し作業所 千葉県八街市山田台(No.3号) 26.66坪
貸し地 千葉県八街市上砂字大清水 150.26坪
貸事務所
土地
19.80
万円
150.27坪
貸し地 千葉県八街市上砂字大清水 150.26坪
貸倉庫 千葉県八街市滝台 約300坪
貸倉庫
125.40
万円
300.00坪
貸倉庫 千葉県八街市滝台 約300坪
貸地 千葉県八街市八街ほ 約1149.50坪
土地
69.00
万円
1,149.50坪
貸地 千葉県八街市八街ほ 約1149.50坪
おすすめ
貸し事務所 東京都大田区東海3 5.44坪 (GTOビル602)
貸事務所
8.80
万円
5.44坪
貸し事務所 東京都大田区東海3 5.44坪 (GTOビル602)
【定借】貸し倉庫 東京都品川区勝島1 67.5坪
貸倉庫
96.53
万円
67.50坪
【定借】貸し倉庫 東京都品川区勝島1 67.5坪
【定借】貸し倉庫 東京都大田区池上8 池上ビル5階 36.4坪
貸倉庫
68.07
万円
36.40坪
【定借】貸し倉庫 東京都大田区池上8 池上ビル5階 36.4坪
【定借】貸し倉庫 東京都大田区池上8 池上ビル2階 168坪
貸倉庫
240.24
万円
168.00坪
【定借】貸し倉庫 東京都大田区池上8 池上ビル2階 168坪
【定借】貸し倉庫・貸し事務所・貸し営業所 東京都国分寺市光町1 191.66坪
貸倉庫
貸事務所
187.00
万円
191.82坪
【定借】貸し倉庫・貸し事務所・貸し営業所 東京都国分寺市光町1 191.66坪
