貸倉庫 貸倉庫 埼玉県草加市西町 約83.42坪
基本情報
| 賃料/管理費 | 41.80 万円 / -- |
|---|---|
| 保証金・敷金 | 114万円 |
| 礼金 | 1ヶ月 |
| 建物階 | 地上2階 |
| 所在階 | -- |
| 住所 | 埼玉県 草加市 西町 |
|---|---|
| 最寄り駅 |
東武伊勢崎線 草加駅(徒歩18分)
|
| 最寄りインター | -- |
| 構造 | 鉄骨造 |
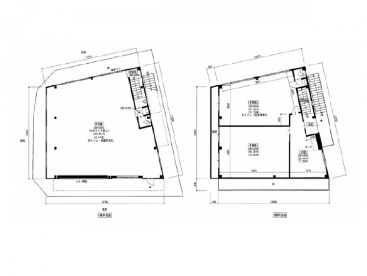
| 面積 | 83.42 坪 (275.78㎡) |
詳細物件情報
| こだわり条件 |
|
|---|---|
| 更新料 | 新賃料1ヶ月 |
| 償却 | 解約時30% |
| 接道 | -- |
| 幅員 | -- |
| 都市計画 | -- |
| 用途地域 | 第一種中高層住居専用地域 |
| 築年数 | 2000年12月 |
| 現状 | 空 |
| 引渡日 | 即時 |
| 取引様態 |
不動産会社様にはご紹介できない物件です。 -- |
| 物件詳細 | 2026年03月リフォーム 全室クロス張替え、床(フローリング等)、外壁 LED照明のメンテナンス・交換費用は借主負担。 第一種中高層住居専用地域のため、作業時間はご相談ください。 |
|---|
この物件に問い合わせる
※お問い合わせの際は管理番号(00726505)をお伝えください。
所在地
他の物件も見てみる
同じ地域の他物件を探す
貸し倉庫 埼玉県越谷市大成町1 69.19坪
貸倉庫
25.00
万円
69.20坪
貸し倉庫 埼玉県越谷市大成町1 69.19坪
貸し地 埼玉県越谷市大成町1 183.92坪
土地
25.00
万円
183.92坪
貸し地 埼玉県越谷市大成町1 183.92坪
貸倉庫 埼玉県草加市松江 約46.96坪
貸倉庫
33.00
万円
46.96坪
貸倉庫 埼玉県草加市松江 約46.96坪
貸倉庫 埼玉県草加市弁天 約296坪
貸倉庫
169.32
万円
296.00坪
貸倉庫 埼玉県草加市弁天 約296坪
貸倉庫 埼玉県草加市松江 約56.02坪
貸倉庫
貸事務所
55.00
万円
--坪
貸倉庫 埼玉県草加市松江 約56.02坪
貸倉庫 埼玉県越谷市南荻島 約107.05坪
貸倉庫
88.00
万円
107.05坪
貸倉庫 埼玉県越谷市南荻島 約107.05坪
貸し倉庫 埼玉県越谷市花田2 190.27坪
貸倉庫
94.19
万円
190.27坪
貸し倉庫 埼玉県越谷市花田2 190.27坪
貸倉庫 埼玉県越谷市増森 約32.20坪
貸倉庫
33.00
万円
32.20坪
貸倉庫 埼玉県越谷市増森 約32.20坪
貸倉庫 埼玉県草加市稲荷 約63.62坪
貸倉庫
貸事務所
35.20
万円
63.62坪
貸倉庫 埼玉県草加市稲荷 約63.62坪
貸倉庫 埼玉県草加市両新田西町 約92.87坪
貸倉庫
貸事務所
65.00
万円
92.87坪
貸倉庫 埼玉県草加市両新田西町 約92.87坪
おすすめ
貸し倉庫 東京都墨田区業平1 76.65坪
貸倉庫
66.00
万円
76.65坪
貸し倉庫 東京都墨田区業平1 76.65坪
【定借】貸し倉庫 神奈川県高座郡寒川町倉見 倉見5.6.7号 666.99坪
貸倉庫
366.85
万円
666.99坪
【定借】貸し倉庫 神奈川県高座郡寒川町倉見 倉見5.6.7号 666.99坪
【定借】貸し倉庫 埼玉県三郷市新和3 400坪
貸倉庫
154.00
万円
400.00坪
【定借】貸し倉庫 埼玉県三郷市新和3 400坪
【定借】貸し倉庫 神奈川県海老名市門沢橋3 102.09坪
貸倉庫
56.15
万円
102.09坪
【定借】貸し倉庫 神奈川県海老名市門沢橋3 102.09坪
【定借】貸し倉庫・貸し工場 東京都文京区水道2 93.7坪
貸倉庫
貸工場
124.08
万円
93.70坪
【定借】貸し倉庫・貸し工場 東京都文京区水道2 93.7坪
