貸倉庫 【定借】貸し倉庫 埼玉県戸田市笹目7(15号倉庫C棟) 1054.88坪
基本情報
| 賃料/管理費 | 812.65 万円 / -- |
|---|---|
| 保証金・敷金 | 5ヶ月 |
| 礼金 | 1ヶ月 |
| 建物階 | 地上2階 |
| 所在階 | 一棟 |
| 住所 | 埼玉県 戸田市 笹目 7-4-10 |
|---|---|
| 最寄り駅 |
JR埼京線 戸田駅(徒歩35分)
|
| 最寄りインター | -- |
| 構造 | 鉄骨造 |
| 面積 | 1,054.88 坪 (3487.21㎡) |
詳細物件情報
| こだわり条件 |
|
|---|---|
| 定期借家契約 | あり(詳細は物件詳細を参照) |
| 償却 | ナシ |
| 接道 | -- |
| 幅員 | -- |
| 都市計画 | 市街化区域 |
| 用途地域 | 準工業地域 |
| 築年数 | 2020年 |
| 現状 | 使用中 |
| 引渡日 | 相談 |
| 取引様態 | 媒介 |
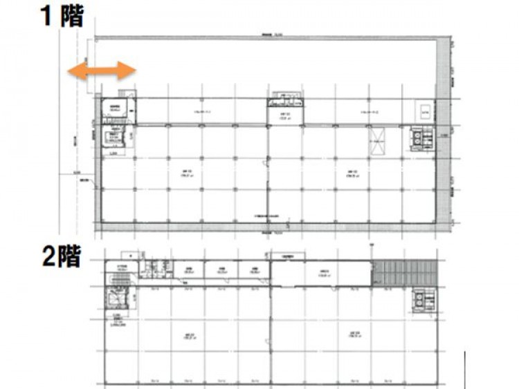
| 物件詳細 | ■事務所:1階14.16坪(46.81㎡)・2階67.52坪(223.21㎡) ■使用面積詳細 1階:513.83坪(1698.61㎡) 2階:541.05坪(1788.6㎡) 合計:1054.88坪(3487.21㎡) ■天井高:1・2階 5.5m ■リフト1基(3.5t)・垂直搬送機1基 ■ラック使用料:347,886円(税込)/PL(1506) ■内見できます |
|---|
この物件に問い合わせる
※お問い合わせの際は管理番号(00304211)をお伝えください。
所在地
他の物件も見てみる
同じ地域の他物件を探す
貸工場 埼玉県戸田市美女木東 約102.58坪
貸工場
88.00
万円
102.58坪
貸工場 埼玉県戸田市美女木東 約102.58坪
貸倉庫 埼玉県戸田市笹目 約72.56坪
貸倉庫
110.00
万円
72.56坪
貸倉庫 埼玉県戸田市笹目 約72.56坪
貸倉庫 埼玉県蕨市南町 約135.52坪
貸倉庫
88.00
万円
135.52坪
貸倉庫 埼玉県蕨市南町 約135.52坪
貸し倉庫・貸し工場 埼玉県戸田市笹目4 91.08坪
貸倉庫
貸工場
66.00
万円
91.09坪
貸し倉庫・貸し工場 埼玉県戸田市笹目4 91.08坪
貸し工場・貸し倉庫 埼玉県戸田市笹目7 237.65坪
貸倉庫
貸工場
121.00
万円
237.65坪
貸し工場・貸し倉庫 埼玉県戸田市笹目7 237.65坪
貸地 埼玉県戸田市美女木 約110.07坪
土地
45.00
万円
110.07坪
貸地 埼玉県戸田市美女木 約110.07坪
貸作業所 埼玉県戸田市美女木 約51坪
貸倉庫
貸工場
44.88
万円
51.00坪
貸作業所 埼玉県戸田市美女木 約51坪
準工業地域・自動ラック付き・事務所棟あり
貸倉庫
相談
180.84坪
準工業地域・自動ラック付き・事務所棟あり
貸倉庫 埼玉県戸田市新曽南 約497.01坪
貸倉庫
335.50
万円
497.01坪
貸倉庫 埼玉県戸田市新曽南 約497.01坪
貸工場 埼玉県戸田市笹目南町 約60.12坪
貸工場
55.00
万円
60.12坪
貸工場 埼玉県戸田市笹目南町 約60.12坪
おすすめ
貸し事務所・貸し店舗 東京都板橋区板橋1 河野ビル1階 24.35坪
貸店舗
貸事務所
35.00
万円
24.35坪
貸し事務所・貸し店舗 東京都板橋区板橋1 河野ビル1階 24.35坪
貸し倉庫 千葉県柏市小青田 897坪
貸倉庫
相談
897.72坪
貸し倉庫 千葉県柏市小青田 897坪
【定借】貸し工場・貸し倉庫 埼玉県入間郡竹間沢(2階) 132.31坪
貸倉庫
貸工場
30.00
万円
132.31坪
【定借】貸し工場・貸し倉庫 埼玉県入間郡竹間沢(2階) 132.31坪
貸し倉庫・貸し事務所 東京都江戸川区江戸川6 238.34坪
貸倉庫
貸事務所
198.00
万円
238.35坪
貸し倉庫・貸し事務所 東京都江戸川区江戸川6 238.34坪
【定借】貸し事務所 東京都江戸川区江戸川6(アイエスビル4階) 12.1坪
貸事務所
7.15
万円
12.10坪
【定借】貸し事務所 東京都江戸川区江戸川6(アイエスビル4階) 12.1坪
