貸倉庫 【定借】貸 し倉庫 神奈川県海老名市本郷 145.20坪
基本情報
| 賃料/管理費 | 99.00 万円 / 11,110円 |
|---|---|
| 保証金・敷金 | 4ヶ月 |
| 礼金 | 1ヶ月 |
| 建物階 | 平屋建て |
| 所在階 | 一棟 |
| 住所 | 神奈川県 海老名市 本郷 |
|---|---|
| 最寄り駅 |
JR相模線 門沢橋駅(徒歩23分)
|
| 最寄りインター | ■圏央道「寒川IC」より3.8km |
| 構造 | 鉄骨造 |
| 面積 | 145.20 坪 (480.0㎡) |
詳細物件情報
| こだわり条件 |
|
|---|---|
| 定期借家契約 | あり(詳細は物件詳細を参照) |
| 償却 | 解約時賃料の1ヶ月分(別途消費税) |
| 接道 | 一方 |
| 幅員 | 6m |
| 都市計画 | 市街化区域 |
| 用途地域 | 工業地域 |
| 築年数 | 2000年3月 |
| 現状 | 入居中 |
| 引渡日 | 2026年05月01日 |
| 取引様態 | 媒介 |
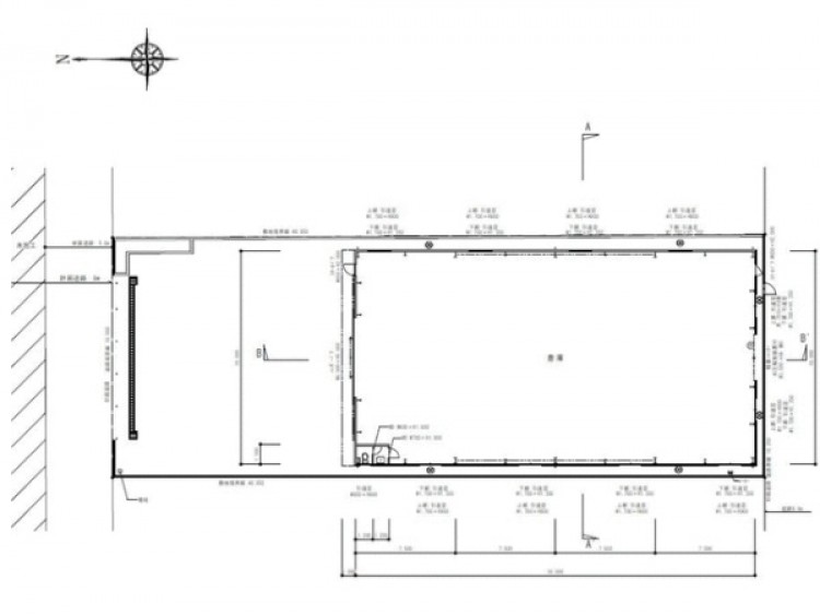
| 物件詳細 | ■倉庫:幅16m 奥行30m ■シャッター:幅6m高さ5m ■圏央道「寒川IC」より3.8km ■敷地面積:268.49坪(887.58㎡) ■中途解約不可 ■内覧可能 |
|---|
この物件に問い合わせる
※お問い合わせの際は管理番号(00502031)をお伝えください。
所在地
他の物件も見てみる
同じ地域の他物件を探す
【定借】貸し倉庫 神奈川県海老名市門沢橋3 102.09坪
貸倉庫
56.15
万円
102.09坪
【定借】貸し倉庫 神奈川県海老名市門沢橋3 102.09坪
貸倉庫 神奈川県海老名市門沢橋 約102.09坪
貸倉庫
56.15
万円
102.09坪
貸倉庫 神奈川県海老名市門沢橋 約102.09坪
大型トラック接車可能・シャッター2枚
貸倉庫
相談
272.99坪
大型トラック接車可能・シャッター2枚
貸工場 神奈川県海老名市門沢橋 約195.43坪
貸工場
83.00
万円
195.43坪
貸工場 神奈川県海老名市門沢橋 約195.43坪
貸倉庫 神奈川県海老名市杉久保南 約64.02坪
貸倉庫
55.00
万円
64.02坪
貸倉庫 神奈川県海老名市杉久保南 約64.02坪
貸地 神奈川県海老名市中河内 約445坪
土地
53.85
万円
445.28坪
貸地 神奈川県海老名市中河内 約445坪
おすすめ
貸し倉庫・貸し工場 千葉県松戸市大橋 49.98坪
貸倉庫
貸工場
28.60
万円
49.99坪
貸し倉庫・貸し工場 千葉県松戸市大橋 49.98坪
【定借】貸し倉庫 千葉県市川市塩浜2 650坪(スペース貸)
貸倉庫
521.95
万円
650.00坪
【定借】貸し倉庫 千葉県市川市塩浜2 650坪(スペース貸)
貸し倉庫 埼玉県八潮市八潮2 222.82坪
貸倉庫
110.30
万円
222.82坪
貸し倉庫 埼玉県八潮市八潮2 222.82坪
【定借】貸し倉庫 埼玉県三郷市彦沢1 469坪
貸倉庫
283.75
万円
469.00坪
【定借】貸し倉庫 埼玉県三郷市彦沢1 469坪
貸し倉庫 東京都墨田区業平1 76.65坪
貸倉庫
66.00
万円
76.65坪
貸し倉庫 東京都墨田区業平1 76.65坪
