貸店舗 貸店舗 埼玉県北本市荒井 約60.41坪
基本情報
| 賃料/管理費 | 55.00 万円 / 11,000円 |
|---|---|
| 保証金・敷金 | 6ヶ月 |
| 礼金 | 2ヶ月 |
| 建物階 | 平屋建て |
| 所在階 | 1階部分 |
| 住所 | 埼玉県 北本市 荒井 |
|---|---|
| 最寄り駅 |
--
|
| 最寄りインター | 「桶川北本」ICより約4.5km |
| 構造 | 軽量鉄骨造 |
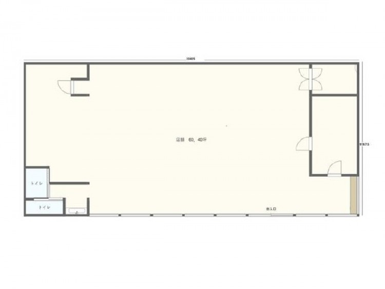
| 面積 | 60.41 坪 (199.70㎡) |
詳細物件情報
| こだわり条件 |
|
|---|---|
| 更新料 | 新賃料 1ヶ月 |
| 償却 | 解約時1ヶ月 |
| 接道 | 一方 |
| 幅員 | 北側 公道約12m |
| 都市計画 | -- |
| 用途地域 | 無指定 |
| 築年数 | 2015年6月 |
| 現状 | 空 |
| 引渡日 | 相談 |
| 取引様態 |
不動産会社様にはご紹介できない物件です。 媒介 |
| 物件詳細 | 敷地約533.77坪 建物約60.40坪 物置約2.52坪 県道東松山・桶川線沿い 駐車場27台分 |
|---|
この物件に問い合わせる
※お問い合わせの際は管理番号(00723355)をお伝えください。
所在地
他の物件も見てみる
おすすめ
貸地 埼玉県日高市上鹿山 約1,316.48坪
土地
50.00
万円
1,316.48坪
貸地 埼玉県日高市上鹿山 約1,316.48坪
貸し店舗・貸し事務所・貸し倉庫・貸し作業所 久喜市久喜東5 256.51坪
貸倉庫
貸店舗
55.00
万円
256.52坪
貸し店舗・貸し事務所・貸し倉庫・貸し作業所 久喜市久喜東5 256.51坪
【定借】貸し倉庫 埼玉県三郷市新和3 400坪
貸倉庫
171.60
万円
400.00坪
【定借】貸し倉庫 埼玉県三郷市新和3 400坪
貸し事務所 東京都立川市緑町(2階A・B区画) 124.26坪
貸事務所
205.03
万円
121.55坪
貸し事務所 東京都立川市緑町(2階A・B区画) 124.26坪
貸し倉庫・貸し店舗 埼玉県久喜市久喜東 210.54坪
貸倉庫
貸店舗
110.00
万円
210.54坪
貸し倉庫・貸し店舗 埼玉県久喜市久喜東 210.54坪
