貸工場 貸し工場 神奈川県厚木市酒井 382坪
基本情報
賃料/管理費 | 210.10 万円 / 51,700円 |
---|---|
保証金・敷金 | 4ヶ月 |
礼金 | 1ヶ月 |
建物階 | 地上2階 |
所在階 | 一棟 |
住所 | 神奈川県 厚木市 酒井 3184 |
---|---|
最寄り駅 |
小田急線 愛甲石田駅(徒歩23分)
|
最寄りインター | ■東名高速「厚木IC」から1.0㎞ |
構造 | 鉄骨造 |
面積 | 382.00 坪 (1262.81㎡) |
詳細物件情報
こだわり条件 |
|
---|---|
定期借家契約 | あり(詳細は物件詳細を参照) |
償却 | 解約時賃料の1ヶ月分(別途消費税) |
接道 | -- |
幅員 | 8m |
都市計画 | 市街化区域 |
用途地域 | 準工業地域 |
築年数 | 1990年2月 |
現状 | 使用中 |
引渡日 | 2025年11月 |
取引様態 | 媒介 |
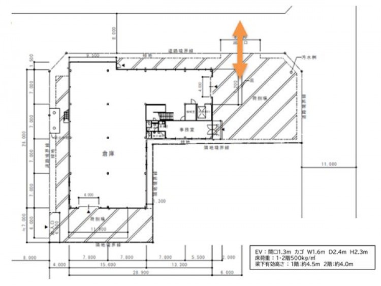
物件詳細 | ■貨物リフト:980㎏ ■東名高速「厚木IC」から1.0㎞ ■庫内事務所あり ■床加重:500㎏/㎡ ■天井高:1階:4.5m 2階:4.0m ■敷地面積:1,333.16㎡(403.28坪) |
---|
この物件に問い合わせる

※お問い合わせの際は管理番号(00502021)をお伝えください。
所在地
他の物件も見てみる
同じ地域の他物件を探す
貸地 神奈川県厚木市恩名 約618.96坪

土地
70.00
万円
618.96坪
貸地 神奈川県厚木市恩名 約618.96坪
【定借】貸し倉庫 神奈川県厚木市戸室1 530.58坪

貸倉庫
198.00
万円
530.59坪
【定借】貸し倉庫 神奈川県厚木市戸室1 530.58坪
貸地 神奈川県厚木市上荻野 約497.59坪

土地
43.79
万円
497.60坪
貸地 神奈川県厚木市上荻野 約497.59坪
貸地 神奈川県厚木市酒井 約438.93坪

土地
72.27
万円
438.93坪
貸地 神奈川県厚木市酒井 約438.93坪
貸倉庫 神奈川県厚木市船子 約364.58坪

貸倉庫
220.00
万円
364.58坪
貸倉庫 神奈川県厚木市船子 約364.58坪
貸店舗 神奈川県厚木市岡田 約56.67坪

貸店舗
貸事務所
74.80
万円
56.67坪
貸店舗 神奈川県厚木市岡田 約56.67坪
貸倉庫 神奈川県厚木市長沼 約494.18坪

貸倉庫
209.00
万円
494.18坪
貸倉庫 神奈川県厚木市長沼 約494.18坪
貸し倉庫 神奈川県厚木市妻田南1 310坪

貸倉庫
153.45
万円
310.00坪
貸し倉庫 神奈川県厚木市妻田南1 310坪
貸工場 神奈川県厚木市三田 約410.12坪

貸工場
248.13
万円
410.12坪
貸工場 神奈川県厚木市三田 約410.12坪
貸倉庫 神奈川県厚木市妻田北 約192.36坪

貸倉庫
75.90
万円
192.36坪
貸倉庫 神奈川県厚木市妻田北 約192.36坪
おすすめ
貸し倉庫 埼玉県三郷市天神1 113坪

貸倉庫
62.15
万円
113.00坪
貸し倉庫 埼玉県三郷市天神1 113坪
貸し倉庫 埼玉県加須市南町 161.31坪

貸倉庫
62.31
万円
161.32坪
貸し倉庫 埼玉県加須市南町 161.31坪
貸し倉庫 埼玉県八潮市緑町1 453.08坪

--
224.28
万円
453.10坪
貸し倉庫 埼玉県八潮市緑町1 453.08坪
貸し工場・貸し倉庫 八潮市大字二丁目 361坪

--
178.84
万円
361.29坪
貸し工場・貸し倉庫 八潮市大字二丁目 361坪
貸し倉庫 埼玉県越谷市花田2 190.27坪

貸倉庫
94.19
万円
190.27坪
貸し倉庫 埼玉県越谷市花田2 190.27坪