貸倉庫 貸倉庫 神奈川県横浜市都筑区東山田町 約44坪
基本情報
| 賃料/管理費 | 38.50 万円 / -- |
|---|---|
| 保証金・敷金 | 116万円 |
| 礼金 | -- |
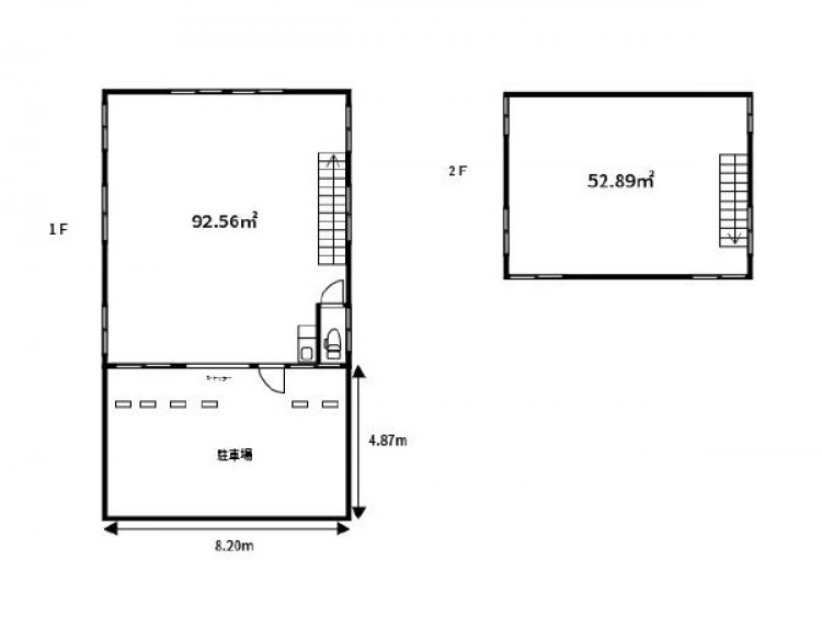
| 建物階 | 地上2階 |
| 所在階 | 1階~2階部分 |
| 住所 | 神奈川県 横浜市都筑区 東山田町 |
|---|---|
| 最寄り駅 |
グリーンライン 東山田駅(徒歩4分)
|
| 最寄りインター | 第三京浜「都筑」ICより車で約5分 |
| 構造 | 鉄骨造 |
| 面積 | 44.00 坪 (145.45㎡) |
詳細物件情報
| こだわり条件 |
|
|---|---|
| 更新料 | 新賃料1ヶ月 |
| 償却 | 無し |
| 接道 | -- |
| 幅員 | -- |
| 都市計画 | -- |
| 用途地域 | -- |
| 築年数 | 1993年3月 |
| 現状 | 空 |
| 引渡日 | 相談 |
| 取引様態 |
不動産会社様にはご紹介できない物件です。 -- |
| 物件詳細 | ※保証会社の利用必須です。 ※退去時、室内クリーニング費用は借主様のご負担となります。1階スケルトン・2階原状回復での返還となります。 鍵交換費用(U9):13,200円、 鍵交換費用(ディンプル):15,400円 |
|---|
この物件に問い合わせる
※お問い合わせの際は管理番号(00726299)をお伝えください。
所在地
他の物件も見てみる
同じ地域の他物件を探す
貸地 神奈川県横浜市都筑区勝田町 約191.79坪
土地
44.00
万円
191.79坪
貸地 神奈川県横浜市都筑区勝田町 約191.79坪
貸倉庫 神奈川県横浜市都筑区東山田町 約100.94坪
貸倉庫
88.00
万円
100.94坪
貸倉庫 神奈川県横浜市都筑区東山田町 約100.94坪
貸倉庫 神奈川県横浜市都筑区佐江戸町 約81.15坪
貸倉庫
64.90
万円
81.15坪
貸倉庫 神奈川県横浜市都筑区佐江戸町 約81.15坪
貸倉庫 神奈川県横浜市都筑区南山田町 約56坪
貸倉庫
70.00
万円
56.00坪
貸倉庫 神奈川県横浜市都筑区南山田町 約56坪
貸倉庫 神奈川県横浜市都筑区東山田町 約24.20坪
貸倉庫
貸事務所
33.00
万円
24.20坪
貸倉庫 神奈川県横浜市都筑区東山田町 約24.20坪
貸し倉庫 神奈川県横浜市都筑区大棚町 310坪
貸倉庫
306.90
万円
310.00坪
貸し倉庫 神奈川県横浜市都筑区大棚町 310坪
貸地 神奈川県都筑区川和町 約258.34坪
土地
44.00
万円
258.34坪
貸地 神奈川県都筑区川和町 約258.34坪
貸倉庫 神奈川県横浜市都筑区佐江戸町 約33.88坪
貸倉庫
53.46
万円
33.88坪
貸倉庫 神奈川県横浜市都筑区佐江戸町 約33.88坪
貸地 神奈川県横浜市都筑区池辺町 約227.81坪
土地
49.50
万円
227.82坪
貸地 神奈川県横浜市都筑区池辺町 約227.81坪
貸倉庫 神奈川県横浜市都筑区茅ケ崎東 約61.89坪
貸倉庫
59.40
万円
61.89坪
貸倉庫 神奈川県横浜市都筑区茅ケ崎東 約61.89坪
おすすめ
貸し倉庫・貸し工場・貸し事務所 東京都区江戸川区中央3 三家第2ビルB区画 76.1坪
貸倉庫
貸工場
71.50
万円
76.10坪
貸し倉庫・貸し工場・貸し事務所 東京都区江戸川区中央3 三家第2ビルB区画 76.1坪
貸し事務所・貸し倉庫 東京都江戸川区臨海町3(タジマヤ臨海町ビル4階P区画) 56.61坪
貸倉庫
貸事務所
40.48
万円
56.61坪
貸し事務所・貸し倉庫 東京都江戸川区臨海町3(タジマヤ臨海町ビル4階P区画) 56.61坪
貸し倉庫 東京都江戸川区中央3 三家第2ビル1階A区画 59.95坪
貸倉庫
47.30
万円
59.95坪
貸し倉庫 東京都江戸川区中央3 三家第2ビル1階A区画 59.95坪
【定借】貸し倉庫 東京都町田市小山町 293.15坪
貸倉庫
225.50
万円
293.15坪
【定借】貸し倉庫 東京都町田市小山町 293.15坪
【定借】貸し倉庫・貸し事務所 東京都世田谷区下馬5 56.42坪
貸倉庫
貸事務所
66.00
万円
56.43坪
【定借】貸し倉庫・貸し事務所 東京都世田谷区下馬5 56.42坪
