貸倉庫 貸し倉庫 東京都東村山市恩多町5 445.68坪
基本情報
賃料/管理費 | 210.81 万円 / -- |
---|---|
保証金・敷金 | 4ヶ月 |
礼金 | 1ヶ月 |
建物階 | 平屋建て |
所在階 | 一棟 |
住所 | 東京都 東村山市 恩多町 5-44-2 |
---|---|
最寄り駅 |
西武新宿線 久米川駅(徒歩25分)
|
最寄りインター | 関越道「所沢IC」から8.6km |
構造 | 鉄骨造 |
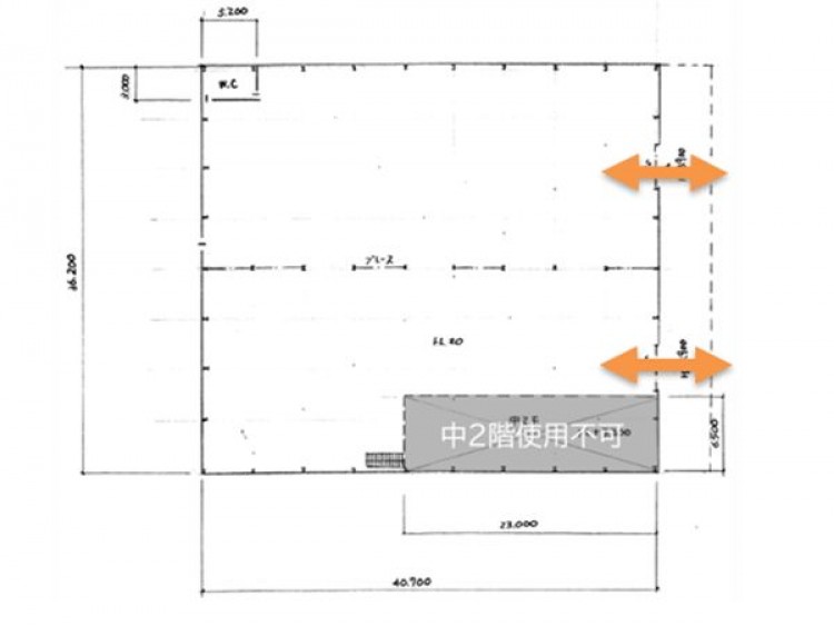
面積 | 445.68 坪 (1473.33㎡) |
詳細物件情報
こだわり条件 |
|
---|---|
定期借家契約 | あり(詳細は物件詳細を参照) |
償却 | なし |
接道 | -- |
幅員 | -- |
都市計画 | 市街化区域 |
用途地域 | 準工業地域 |
築年数 | 1971年3月 |
現状 | 使用中 |
引渡日 | 2025年12月上旬 |
取引様態 | 媒介 |
物件詳細 | ■関越道「所沢IC」から8.6km ■平屋倉庫 ■4トントラック接車可能 ■スーパー至近 ■シャッター:高さ3.9m ■天井高:5.4m ■管理・共益費:あり |
---|
この物件に問い合わせる

※お問い合わせの際は管理番号(00203383)をお伝えください。
所在地
他の物件も見てみる
おすすめ
貸し倉庫・貸し事務所 埼玉県八潮市大字西袋 39.28坪

貸倉庫
貸事務所
29.70
万円
39.29坪
貸し倉庫・貸し事務所 埼玉県八潮市大字西袋 39.28坪
貸し倉庫・貸し工場 千葉県柏市逆井 102.86坪

貸倉庫
貸工場
38.50
万円
102.89坪
貸し倉庫・貸し工場 千葉県柏市逆井 102.86坪
貸し倉庫・貸し事務所 埼玉県熊谷市問屋町 168.65坪

貸倉庫
貸事務所
46.20
万円
168.66坪
貸し倉庫・貸し事務所 埼玉県熊谷市問屋町 168.65坪
貸し倉庫・貸し作業所 千葉県八街市山田台(No.3号) 26.66坪

貸倉庫
19.80
万円
26.67坪
貸し倉庫・貸し作業所 千葉県八街市山田台(No.3号) 26.66坪
貸し地 東京都足立区入谷2 90.46坪

土地
29.70
万円
90.46坪
貸し地 東京都足立区入谷2 90.46坪