貸倉庫 貸倉庫 東京都八王子市散田町 約169.99坪
基本情報
| 賃料/管理費 | 58.30 万円 / -- |
|---|---|
| 保証金・敷金 | 350万円 |
| 礼金 | 2ヶ月 |
| 建物階 | 地上2階 |
| 所在階 | -- |
| 住所 | 東京都 八王子市 散田町 |
|---|---|
| 最寄り駅 |
京王高尾線 めじろ台駅(徒歩18分)
JR中央本線(東京~塩尻) 西八王子駅(徒歩19分)
|
| 最寄りインター | -- |
| 構造 | 鉄骨造 |
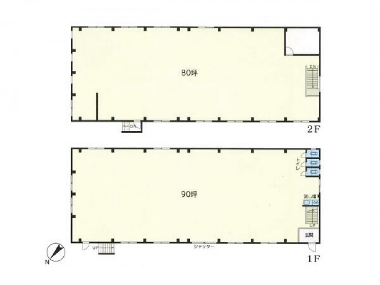
| 面積 | 169.99 坪 (561.96㎡) |
詳細物件情報
| こだわり条件 |
|
|---|---|
| 更新料 | 新賃料 1ヶ月 |
| 償却 | 解約時2ヶ月 |
| 接道 | 角地 |
| 幅員 | 東側 公道約4.0m 北側 公道約4.0m |
| 都市計画 | -- |
| 用途地域 | 準工業地域 |
| 築年数 | 1979年3月 |
| 現状 | 空 |
| 引渡日 | 即時 |
| 取引様態 |
不動産会社様にはご紹介できない物件です。 -- |
| 物件詳細 | 駐車スペース空き8台 |
|---|
この物件に問い合わせる
※お問い合わせの際は管理番号(00726039)をお伝えください。
所在地
他の物件も見てみる
同じ地域の他物件を探す
貸工場 東京都八王子市川口町 約60.5坪
貸工場
33.00
万円
60.50坪
貸工場 東京都八王子市川口町 約60.5坪
貸作業所 東京都八王子市高倉町 約78.32坪
貸倉庫
貸工場
38.50
万円
78.32坪
貸作業所 東京都八王子市高倉町 約78.32坪
貸作業所 東京都八王子市戸吹町 約67.88坪
貸倉庫
貸工場
40.00
万円
67.88坪
貸作業所 東京都八王子市戸吹町 約67.88坪
貸倉庫 東京都八王子市長房町 約75.43坪
貸倉庫
38.50
万円
75.43坪
貸倉庫 東京都八王子市長房町 約75.43坪
貸し工場 東京都八王子市楢原町 約328.61坪
貸工場
130.00
万円
328.61坪
貸し工場 東京都八王子市楢原町 約328.61坪
貸作業所 東京都八王子市四谷町 約544.84坪
貸倉庫
貸工場
320.00
万円
544.84坪
貸作業所 東京都八王子市四谷町 約544.84坪
貸地 東京都八王子市宇津木町 約533.42坪
土地
100.00
万円
520.00坪
貸地 東京都八王子市宇津木町 約533.42坪
貸地 東京都八王子市宮下町 約278.00坪
土地
30.00
万円
278.00坪
貸地 東京都八王子市宮下町 約278.00坪
貸倉庫 東京都八王子市小宮町 約515.75坪
貸倉庫
199.60
万円
515.75坪
貸倉庫 東京都八王子市小宮町 約515.75坪
貸し倉庫・事務所 東京都八王子市散田町 約194.90坪
貸倉庫
貸事務所
66.00
万円
194.90坪
貸し倉庫・事務所 東京都八王子市散田町 約194.90坪
おすすめ
貸し倉庫 東京都立川市西砂町2 98.94坪
貸倉庫
貸工場
66.00
万円
98.94坪
貸し倉庫 東京都立川市西砂町2 98.94坪
貸し事務所・貸し店舗 神奈川県平塚市明石町1 VERSE1平塚ビル(旧名称:太陽生命平塚ビル)7階 81.37坪
貸事務所
67.14
万円
81.37坪
貸し事務所・貸し店舗 神奈川県平塚市明石町1 VERSE1平塚ビル(旧名称:太陽生命平塚ビル)7階 81.37坪
貸し倉庫 埼玉県三郷市新和3 400坪
貸倉庫
184.80
万円
400.00坪
貸し倉庫 埼玉県三郷市新和3 400坪
【定借】貸し工場・貸し倉庫・貸し防音スタジオ 大田区仲池上2 151.11坪
貸倉庫
貸工場
220.00
万円
154.11坪
【定借】貸し工場・貸し倉庫・貸し防音スタジオ 大田区仲池上2 151.11坪
★新築★貸し倉庫 埼玉県川口市新堀 179.68坪
貸倉庫
158.40
万円
179.69坪
★新築★貸し倉庫 埼玉県川口市新堀 179.68坪
