貸工場 貸工場 東京都大田区南六郷 約27.68坪
基本情報
| 賃料/管理費 | 38.50 万円 / -- |
|---|---|
| 保証金・敷金 | 10ヶ月 |
| 礼金 | 1ヶ月 |
| 建物階 | 地上2階 |
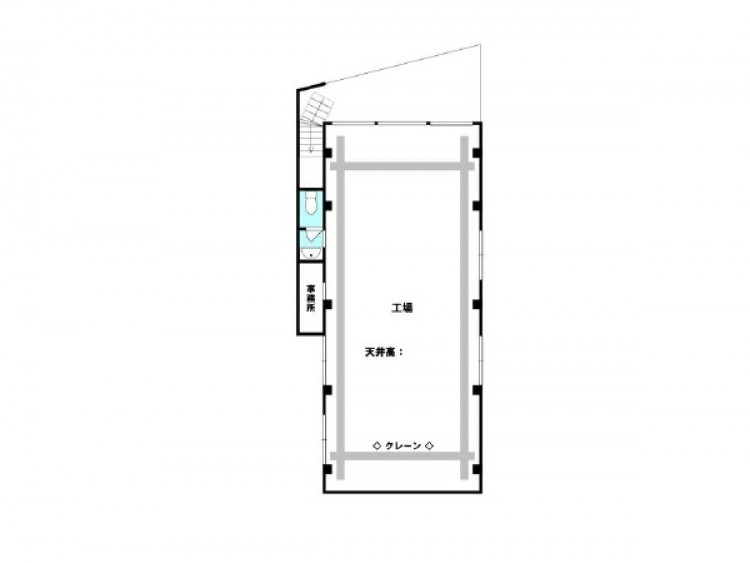
| 所在階 | 1階部分 |
| 住所 | 東京都 大田区 南六郷 |
|---|---|
| 最寄り駅 |
京急本線 雑色駅(徒歩12分)
|
| 最寄りインター | -- |
| 構造 | 鉄骨造 |
| 面積 | 27.68 坪 (91.50㎡) |
詳細物件情報
| こだわり条件 |
|
|---|---|
| 更新料 | 新賃料 1.1ヶ月 |
| 償却 | 解約時3ヶ月 |
| 接道 | 二方 |
| 幅員 | 西側 公道約6.7m |
| 都市計画 | -- |
| 用途地域 | -- |
| 築年数 | 1981年9月 |
| 現状 | 使用中 |
| 引渡日 | 予定 2026年01月上旬 |
| 取引様態 |
不動産会社様にはご紹介できない物件です。 媒介 |
| 物件詳細 | ◎用途/業種について: |
|---|
この物件に問い合わせる
※お問い合わせの際は管理番号(00726048)をお伝えください。
所在地
他の物件も見てみる
同じ地域の他物件を探す
貸店舗 東京都大田区多摩川 約36.05坪
貸店舗
貸事務所
27.50
万円
35.12坪
貸店舗 東京都大田区多摩川 約36.05坪
貸し事務所・貸し倉庫 東京都大田区東海3(東海ビル5F) 36.07坪
貸事務所
29.70
万円
36.08坪
貸し事務所・貸し倉庫 東京都大田区東海3(東海ビル5F) 36.07坪
【定借】貸し倉庫 東京都大田区池上8 池上ビル5階 36.4坪
貸倉庫
68.07
万円
36.40坪
【定借】貸し倉庫 東京都大田区池上8 池上ビル5階 36.4坪
【定借】貸し倉庫 東京都大田区池上8 池上ビル2階 168坪
貸倉庫
240.24
万円
168.00坪
【定借】貸し倉庫 東京都大田区池上8 池上ビル2階 168坪
貸工場 東京都大田区南六郷 約50.20坪
貸工場
39.82
万円
50.20坪
貸工場 東京都大田区南六郷 約50.20坪
貸工場 東京都大田区南六郷 約57.93坪
貸工場
51.92
万円
57.93坪
貸工場 東京都大田区南六郷 約57.93坪
貸工場 東京都大田区東糀谷 約689坪
貸工場
473.00
万円
689.00坪
貸工場 東京都大田区東糀谷 約689坪
【定借】貸し倉庫・貸し防音スタジオ・リハーサルスタジオ プロ・ゲネプロ大型スタジオ 大田区仲池上2 228.85坪
貸倉庫
貸工場
330.00
万円
228.85坪
【定借】貸し倉庫・貸し防音スタジオ・リハーサルスタジオ プロ・ゲネプロ大型スタジオ 大田区仲池上2 228.85坪
貸工場 東京都大田区南六郷 約51.91坪
貸工場
48.00
万円
51.91坪
貸工場 東京都大田区南六郷 約51.91坪
貸地 東京都大田区西馬込 約70.18坪
土地
150.00
万円
70.18坪
貸地 東京都大田区西馬込 約70.18坪
おすすめ
貸し倉庫・貸し工場・貸し事務所 東京都区江戸川区中央3 三家第2ビルB区画 76.1坪
貸倉庫
貸工場
71.50
万円
76.10坪
貸し倉庫・貸し工場・貸し事務所 東京都区江戸川区中央3 三家第2ビルB区画 76.1坪
貸し倉庫 神奈川県川崎市宮前区馬絹4 ex.20坪
貸倉庫
貸工場
17.60
万円
20.00坪
貸し倉庫 神奈川県川崎市宮前区馬絹4 ex.20坪
貸し倉庫 東京都墨田区業平1 76.65坪
貸倉庫
66.00
万円
76.65坪
貸し倉庫 東京都墨田区業平1 76.65坪
【定借】貸し倉庫 神奈川県高座郡寒川町倉見 倉見5.6.7号 666.99坪
貸倉庫
366.85
万円
666.99坪
【定借】貸し倉庫 神奈川県高座郡寒川町倉見 倉見5.6.7号 666.99坪
【定借】貸し倉庫 埼玉県三郷市新和3 400坪
貸倉庫
154.00
万円
400.00坪
【定借】貸し倉庫 埼玉県三郷市新和3 400坪
