貸倉庫 貸事務所 【定借】貸し倉庫・貸し事務所・貸し営業所 東京都国分寺市光町1 191.66坪
基本情報
| 賃料/管理費 | 187.00 万円 / -- |
|---|---|
| 保証金・敷金 | 4ヶ月 |
| 礼金 | 1ヶ月 |
| 建物階 | 地上3階 |
| 所在階 | 一棟 |
| 住所 | 東京都 国分寺市 光町 |
|---|---|
| 最寄り駅 |
JR中央線(快速) 国立駅(徒歩9分)
|
| 最寄りインター | -- |
| 構造 | 鉄筋コンクリート |
| 面積 | 191.82 坪 (634.10㎡) |
詳細物件情報
| こだわり条件 |
|
|---|---|
| 定期借家契約 | あり(詳細は物件詳細を参照) |
| 償却 | なし |
| 接道 | 一方 |
| 幅員 | 西6m |
| 都市計画 | 市街化区域 |
| 用途地域 | 第一種中高層住居専用地域 |
| 築年数 | 1994年3月 |
| 現状 | 空 |
| 引渡日 | 即日 |
| 取引様態 | 媒介 |
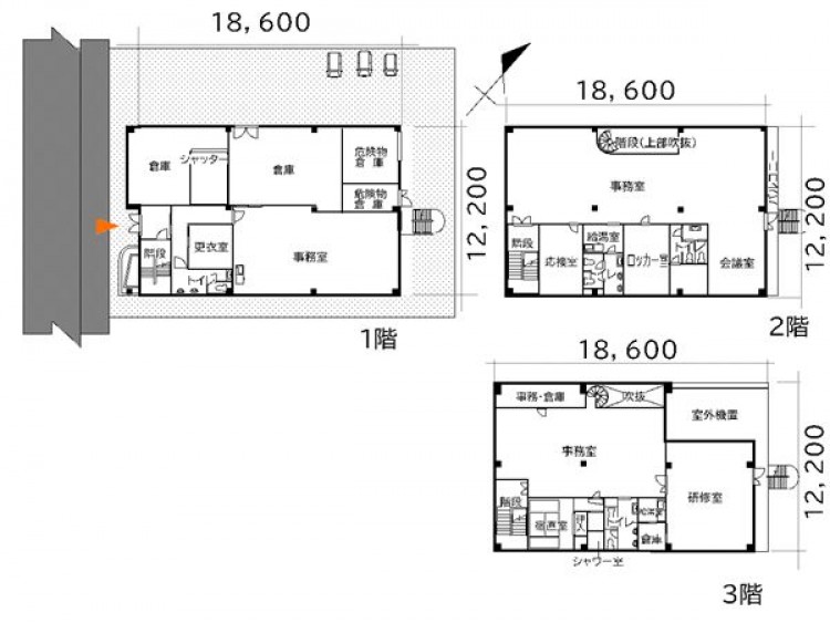
| 物件詳細 | ■国立駅から徒歩圏内 ■定期建物賃貸借契約10年以上相談 ■営業所に最適 ■駐車スペース有(約40台分) ■近隣駐車場181㎡(約55坪)も別途契約相談可能 ■家賃保証会社に加入頂く場合がございます。 ■その他条件ご相談ください ■面積詳細:1階223.8㎡(67.69坪)・2階223.8㎡(67.69坪)・3階186.5㎡(56.28坪)・合計634.1㎡191.66坪※1階増築部分あり ※用途地域は第一種中高層住居専用地域と第二種住居地域にまたがります |
|---|
この物件に問い合わせる
※お問い合わせの際は管理番号(00203386)をお伝えください。
所在地
他の物件も見てみる
同じ地域の他物件を探す
貸し工場・事務所 東京都国立市泉 約40.34坪
貸工場
貸事務所
44.00
万円
40.34坪
貸し工場・事務所 東京都国立市泉 約40.34坪
貸店舗 東京都国立市中 約52坪
貸店舗
82.00
万円
52.00坪
貸店舗 東京都国立市中 約52坪
貸倉庫 東京都国分寺市東戸倉 約23.03坪
貸倉庫
44.00
万円
23.03坪
貸倉庫 東京都国分寺市東戸倉 約23.03坪
貸店舗 東京都国立市富士見台 約62.08坪
貸店舗
貸事務所
55.00
万円
62.08坪
貸店舗 東京都国立市富士見台 約62.08坪
貸倉庫 東京都国分寺市光町 約191.82坪
貸倉庫
187.00
万円
191.82坪
貸倉庫 東京都国分寺市光町 約191.82坪
貸事務所 東京都国分寺市東戸倉 約169.15坪
貸事務所
140.00
万円
169.18坪
貸事務所 東京都国分寺市東戸倉 約169.15坪
建物付き貸地 東京都小平市鈴木町 約246.77坪
土地
172.70
万円
246.78坪
建物付き貸地 東京都小平市鈴木町 約246.77坪
貸し事務所・貸し倉庫・貸し工場 国立市西2 105.87坪
貸倉庫
貸工場
71.50
万円
105.88坪
貸し事務所・貸し倉庫・貸し工場 国立市西2 105.87坪
おすすめ
貸し事務所 東京都大田区東海3 5.44坪 (GTOビル602)
貸事務所
8.80
万円
5.44坪
貸し事務所 東京都大田区東海3 5.44坪 (GTOビル602)
【定借】貸し倉庫 東京都品川区勝島1 67.5坪
貸倉庫
96.53
万円
67.50坪
【定借】貸し倉庫 東京都品川区勝島1 67.5坪
【定借】貸し倉庫 東京都大田区池上8 池上ビル5階 36.4坪
貸倉庫
68.07
万円
36.40坪
【定借】貸し倉庫 東京都大田区池上8 池上ビル5階 36.4坪
【定借】貸し倉庫 東京都大田区池上8 池上ビル2階 168坪
貸倉庫
240.24
万円
168.00坪
【定借】貸し倉庫 東京都大田区池上8 池上ビル2階 168坪
貸し倉庫・貸し工場・貸し事務所 東京都足立区入谷8 97.88坪
貸倉庫
貸工場
99.00
万円
97.88坪
貸し倉庫・貸し工場・貸し事務所 東京都足立区入谷8 97.88坪
