貸倉庫 貸倉庫 東京都台東区鳥越 約212.69坪
基本情報
| 賃料/管理費 | 165.00 万円 / -- |
|---|---|
| 保証金・敷金 | 750万円 |
| 礼金 | 165万円 |
| 建物階 | 地上4階 |
| 所在階 | -- |
| 住所 | 東京都 台東区 鳥越 |
|---|---|
| 最寄り駅 |
JR中央・総武線 浅草橋駅(徒歩9分)
|
| 最寄りインター | -- |
| 構造 | 鉄筋コンクリート |
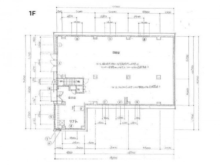
| 面積 | 212.69 坪 (703.11㎡) |
詳細物件情報
| こだわり条件 |
|
|---|---|
| 定期借家契約 | あり(詳細は物件詳細を参照) |
| 償却 | 150万円 |
| 接道 | -- |
| 幅員 | -- |
| 都市計画 | -- |
| 用途地域 | -- |
| 築年数 | 1962年6月 |
| 現状 | -- |
| 引渡日 | -- |
| 取引様態 |
不動産会社様にはご紹介できない物件です。 -- |
| 物件詳細 | 水道代月額3,300円 4階トイレ使用不可 解約予告6ヶ月前 |
|---|
この物件に問い合わせる
※お問い合わせの際は管理番号(00726344)をお伝えください。
所在地
他の物件も見てみる
同じ地域の他物件を探す
貸倉庫 東京都墨田区亀沢 約108.62坪
貸倉庫
179.23
万円
108.62坪
貸倉庫 東京都墨田区亀沢 約108.62坪
貸倉庫 東京都墨田区亀沢 約81.13坪
貸倉庫
89.25
万円
81.13坪
貸倉庫 東京都墨田区亀沢 約81.13坪
貸倉庫・事務所 東京都台東区浅草橋 約204.77坪
貸倉庫
貸事務所
250.00
万円
204.77坪
貸倉庫・事務所 東京都台東区浅草橋 約204.77坪
貸倉庫 東京都墨田区墨田 約194.39坪
貸倉庫
121.00
万円
194.39坪
貸倉庫 東京都墨田区墨田 約194.39坪
貸倉庫 東京都荒川区荒川 約41.26坪
貸倉庫
貸事務所
49.50
万円
41.26坪
貸倉庫 東京都荒川区荒川 約41.26坪
貸地 東京都墨田区東墨田 約63.43坪
土地
27.20
万円
63.43坪
貸地 東京都墨田区東墨田 約63.43坪
貸倉庫 東京都荒川区東尾久 約33.97坪
貸倉庫
38.50
万円
33.97坪
貸倉庫 東京都荒川区東尾久 約33.97坪
貸倉庫 東京都墨田区緑 約43.63坪
貸倉庫
貸事務所
35.20
万円
43.64坪
貸倉庫 東京都墨田区緑 約43.63坪
貸倉庫 東京都台東区鳥越 約31.76坪
貸倉庫
33.00
万円
31.76坪
貸倉庫 東京都台東区鳥越 約31.76坪
貸倉庫 東京都墨田区向島 約27.58坪
貸倉庫
貸店舗
46.20
万円
27.58坪
貸倉庫 東京都墨田区向島 約27.58坪
おすすめ
貸し倉庫・貸し事務所 埼玉県川越市問屋町 642.04坪
貸倉庫
貸事務所
240.13
万円
642.04坪
貸し倉庫・貸し事務所 埼玉県川越市問屋町 642.04坪
【定借】貸し倉庫 神奈川県横浜市神奈川区羽沢南2 29.75坪
貸倉庫
32.73
万円
29.75坪
【定借】貸し倉庫 神奈川県横浜市神奈川区羽沢南2 29.75坪
貸し事務所・貸し倉庫 東京都千代田区東神田1(クラウチビルディング5階) 13.54坪
貸倉庫
貸事務所
14.90
万円
13.54坪
貸し事務所・貸し倉庫 東京都千代田区東神田1(クラウチビルディング5階) 13.54坪
【定借】貸し倉庫・貸し事務所・貸し店舗 東京都江東区森下1 12.1坪
貸倉庫
貸店舗
27.50
万円
12.10坪
【定借】貸し倉庫・貸し事務所・貸し店舗 東京都江東区森下1 12.1坪
貸し店舗・貸し倉庫・貸し事務所 東京都板橋区板橋2 35.5坪
貸倉庫
貸店舗
48.40
万円
35.50坪
貸し店舗・貸し倉庫・貸し事務所 東京都板橋区板橋2 35.5坪
