貸倉庫 貸倉庫 東京都足立区入谷 約65.04坪
基本情報
| 賃料/管理費 | 36.30 万円 / -- |
|---|---|
| 保証金・敷金 | 2ヶ月 |
| 礼金 | 1ヶ月 |
| 建物階 | 地上3階 |
| 所在階 | 1階~2階部分 |
| 住所 | 東京都 足立区 入谷 |
|---|---|
| 最寄り駅 |
日暮里・舎人ライナー 舎人駅(徒歩16分)
|
| 最寄りインター | -- |
| 構造 | 鉄骨造 |
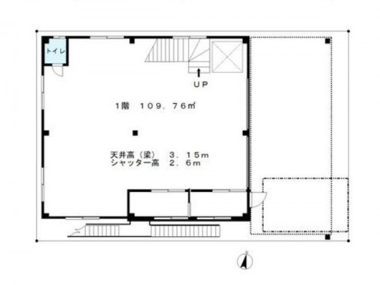
| 面積 | 65.04 坪 (215.0㎡) |
詳細物件情報
| こだわり条件 |
|
|---|---|
| 更新料 | 新賃料1ヶ月 |
| 償却 | 無し |
| 接道 | 一方 |
| 幅員 | 東側 公道約39.9m |
| 都市計画 | -- |
| 用途地域 | 準工業地域 |
| 築年数 | 1981年1月 |
| 現状 | 空 |
| 引渡日 | 相談 |
| 取引様態 |
不動産会社様にはご紹介できない物件です。 -- |
| 物件詳細 | ■駐車場空き3台(オーナーも使用する場合有り) ■検査済証なし。3階部分住居の為、臭気・騒音の出る業種は不可。1・2階へのガス引込無。 ■現況で設置されている設備は残置物であり、修理交換は借主負担。 ■造作の原状回復免除は、事前に貸主が承諾した部分のみ。借主は造作買取請求権・有益費償還請求権を放棄の事。 ■1年以内の解約は違約金2ヶ月、2年以内の解約は違約金1ヶ月。 ■重量物設置による傾きは原状回復義務有り。営業活動で土壌汚染が生じた場合、即契約解除。 ■水道は貸主と共用の為、精算について契約時相談。 ■貸主は適格請求書発行事業者ではありません。 |
|---|
この物件に問い合わせる
※お問い合わせの際は管理番号(00726451)をお伝えください。
所在地
他の物件も見てみる
同じ地域の他物件を探す
貸工場 東京都葛飾区東四つ木 約108.90坪
貸工場
99.00
万円
108.90坪
貸工場 東京都葛飾区東四つ木 約108.90坪
貸し倉庫・貸し事務所 東京都葛飾区堀切1 71.39坪
貸倉庫
貸工場
35.00
万円
71.39坪
貸し倉庫・貸し事務所 東京都葛飾区堀切1 71.39坪
貸倉庫 東京都葛飾区白鳥 約66.36坪
貸倉庫
80.00
万円
66.36坪
貸倉庫 東京都葛飾区白鳥 約66.36坪
貸倉庫 東京都葛飾区宝町 約47.19坪
貸倉庫
38.50
万円
47.19坪
貸倉庫 東京都葛飾区宝町 約47.19坪
貸し事務所・貸し店舗 葛飾区西新小岩4 21.7坪
貸店舗
貸事務所
23.60
万円
21.70坪
貸し事務所・貸し店舗 葛飾区西新小岩4 21.7坪
貸倉庫 東京都葛飾区西亀有 約73.18坪
貸倉庫
38.50
万円
73.18坪
貸倉庫 東京都葛飾区西亀有 約73.18坪
貸し倉庫・貸し事務所 東京都葛飾区新小岩3 36.38坪
貸倉庫
貸事務所
33.00
万円
36.38坪
貸し倉庫・貸し事務所 東京都葛飾区新小岩3 36.38坪
貸店舗 東京都葛飾区西水元 約45.07坪
貸店舗
60.00
万円
45.07坪
貸店舗 東京都葛飾区西水元 約45.07坪
貸倉庫 東京都葛飾区東新小岩 約128.37坪
貸倉庫
55.00
万円
128.37坪
貸倉庫 東京都葛飾区東新小岩 約128.37坪
おすすめ
貸し事務所 東京都大田区東海3 5.44坪 (GTOビル602)
貸事務所
8.80
万円
5.44坪
貸し事務所 東京都大田区東海3 5.44坪 (GTOビル602)
【定借】貸し倉庫 東京都品川区勝島1 67.5坪
貸倉庫
96.53
万円
67.50坪
【定借】貸し倉庫 東京都品川区勝島1 67.5坪
【定借】貸し倉庫 東京都大田区池上8 池上ビル5階 36.4坪
貸倉庫
68.07
万円
36.40坪
【定借】貸し倉庫 東京都大田区池上8 池上ビル5階 36.4坪
【定借】貸し倉庫 東京都大田区池上8 池上ビル2階 168坪
貸倉庫
240.24
万円
168.00坪
【定借】貸し倉庫 東京都大田区池上8 池上ビル2階 168坪
【定借】貸し倉庫・貸し事務所・貸し営業所 東京都国分寺市光町1 191.66坪
貸倉庫
貸事務所
187.00
万円
191.82坪
【定借】貸し倉庫・貸し事務所・貸し営業所 東京都国分寺市光町1 191.66坪
