貸工場 貸し工場 東京都八王子市千人町 約111.32坪
基本情報
| 賃料/管理費 | 44.00 万円 / -- |
|---|---|
| 保証金・敷金 | 3ヶ月 |
| 礼金 | 1ヶ月 |
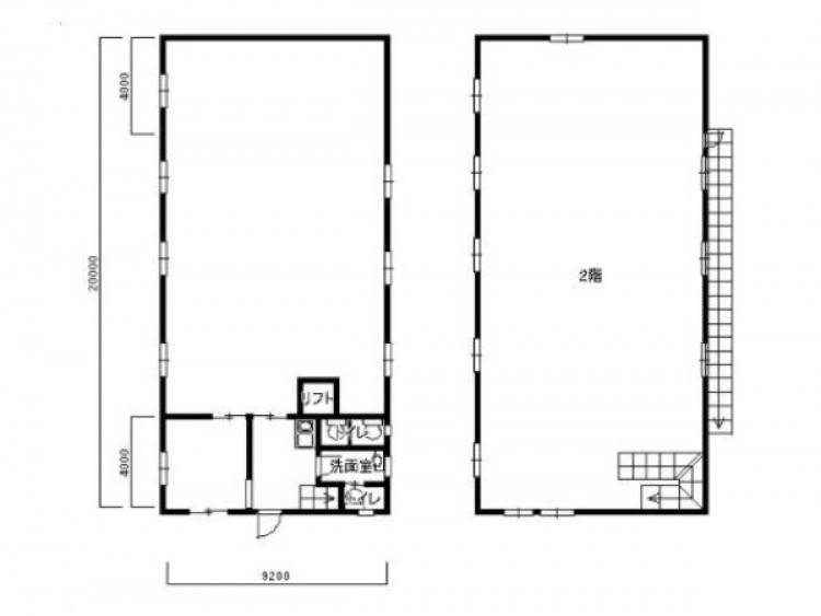
| 建物階 | 地上2階 |
| 所在階 | 1~2階 |
| 住所 | 東京都 八王子市 千人町 |
|---|---|
| 最寄り駅 |
JR中央線(快速) 西八王子駅(徒歩9分)
京王高尾線 めじろ台駅(徒歩24分)
京王高尾線 山田駅(徒歩29分)
|
| 最寄りインター | -- |
| 構造 | 鉄骨造 |
| 面積 | 111.32 坪 (368.0㎡) |
詳細物件情報
| こだわり条件 |
|
|---|---|
| 更新料 | 新賃料1ヶ月 |
| 償却 | 解約時1ヶ月 |
| 接道 | 一方 |
| 幅員 | 南東側 公道約7.0m |
| 都市計画 | -- |
| 用途地域 | 準工業地域 |
| 築年数 | 1989年2月 |
| 現状 | 使用中 |
| 引渡日 | 期日指定 2026年02月01日 |
| 取引様態 |
不動産会社様にはご紹介できない物件です。 -- |
| 物件詳細 | 照明、エアコンは残置物です。 |
|---|
この物件に問い合わせる
※お問い合わせの際は管理番号(00707507)をお伝えください。
所在地
他の物件も見てみる
同じ地域の他物件を探す
貸作業所 東京都八王子市戸吹町 約180.35坪
貸倉庫
貸工場
50.00
万円
180.35坪
貸作業所 東京都八王子市戸吹町 約180.35坪
貸店舗 東京都八王子市元八王子町 約100.02坪
貸店舗
貸事務所
52.80
万円
100.02坪
貸店舗 東京都八王子市元八王子町 約100.02坪
貸地 東京都八王子市長房町 約137.58坪
土地
50.00
万円
137.58坪
貸地 東京都八王子市長房町 約137.58坪
貸倉庫 東京都八王子市宇津木町 約72.88坪
貸倉庫
貸事務所
49.50
万円
72.88坪
貸倉庫 東京都八王子市宇津木町 約72.88坪
貸倉庫 東京都八王子市小宮町 約515.75坪
貸倉庫
199.60
万円
515.75坪
貸倉庫 東京都八王子市小宮町 約515.75坪
貸工場 東京都八王子市諏訪町 約164.14坪
貸工場
貸事務所
65.00
万円
164.14坪
貸工場 東京都八王子市諏訪町 約164.14坪
貸地 東京都八王子市加住町 約244.89坪
土地
33.00
万円
244.89坪
貸地 東京都八王子市加住町 約244.89坪
貸店舗 東京都八王子市元八王子町 約32.13坪
貸店舗
30.80
万円
32.13坪
貸店舗 東京都八王子市元八王子町 約32.13坪
貸作業所 東京都八王子市四谷町 約544.84坪
貸倉庫
貸工場
320.00
万円
544.84坪
貸作業所 東京都八王子市四谷町 約544.84坪
貸工場 東京都八王子市川口町 約60.5坪
貸工場
33.00
万円
60.50坪
貸工場 東京都八王子市川口町 約60.5坪
おすすめ
貸地 埼玉県日高市上鹿山 約1,316.48坪
土地
50.00
万円
1,316.48坪
貸地 埼玉県日高市上鹿山 約1,316.48坪
貸し店舗・貸し事務所・貸し倉庫・貸し作業所 久喜市久喜東5 256.51坪
貸倉庫
貸店舗
55.00
万円
256.52坪
貸し店舗・貸し事務所・貸し倉庫・貸し作業所 久喜市久喜東5 256.51坪
【定借】貸し倉庫 埼玉県三郷市新和3 400坪
貸倉庫
171.60
万円
400.00坪
【定借】貸し倉庫 埼玉県三郷市新和3 400坪
貸し事務所 東京都立川市緑町(2階A・B区画) 124.26坪
貸事務所
205.03
万円
121.55坪
貸し事務所 東京都立川市緑町(2階A・B区画) 124.26坪
貸し倉庫・貸し店舗 埼玉県久喜市久喜東 210.54坪
貸倉庫
貸店舗
110.00
万円
210.54坪
貸し倉庫・貸し店舗 埼玉県久喜市久喜東 210.54坪
