貸倉庫 貸事務所 貸し倉庫 東京都葛飾区細田5 95.82坪
基本情報
| 賃料/管理費 | 47.50 万円 / -- |
|---|---|
| 保証金・敷金 | 3ヶ月 |
| 礼金 | 1ヶ月 |
| 建物階 | 地上3階 |
| 所在階 | -- |
| 住所 | 東京都 葛飾区 細田5-7-9 |
|---|---|
| 最寄り駅 |
京成本線 京成小岩駅(徒歩14分)
JR中央・総武線 小岩駅(徒歩16分)
|
| 最寄りインター | -- |
| 構造 | 鉄骨造 |
| 面積 | 95.83 坪 (316.79㎡) |
詳細物件情報
| こだわり条件 |
|
|---|---|
| 更新料 | 新賃料 1ヶ月 |
| 償却 | なし |
| 接道 | -- |
| 幅員 | 北側6m |
| 都市計画 | 市街化区域 |
| 用途地域 | 第二種低層住居専用地域 |
| 築年数 | 1992年5月 |
| 現状 | 入居中 |
| 引渡日 | 2021年7月上旬 |
| 取引様態 | 専任 |
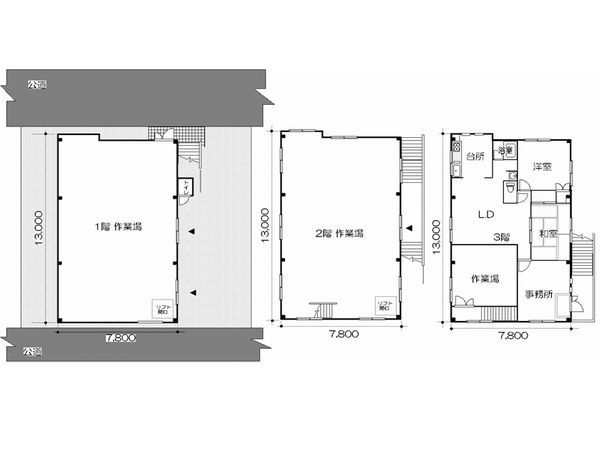
| 物件詳細 | 1階 106.49㎡(32.21坪) 2階 105.15㎡(31.80坪) 3階 105.15㎡(31.80坪) 合計 316.79㎡(95.82坪) ★駐車スペース有(2台) ★一棟貸! ★2・3階寮として使用中!(引渡し状況相談可) その他諸条件相談できます |
|---|
この物件に問い合わせる
※お問い合わせの際は管理番号(00103128)をお伝えください。
所在地
他の物件も見てみる
同じ地域の他物件を探す
貸倉庫 東京都足立区辰沼 約206.91坪
貸倉庫
132.00
万円
206.91坪
貸倉庫 東京都足立区辰沼 約206.91坪
貸工場 東京都葛飾区東四つ木 約108.90坪
貸工場
99.00
万円
108.90坪
貸工場 東京都葛飾区東四つ木 約108.90坪
【定借】貸し倉庫・貸し事務所 東京都足立区梅島2 74.85坪
貸倉庫
貸店舗
60.50
万円
74.85坪
【定借】貸し倉庫・貸し事務所 東京都足立区梅島2 74.85坪
貸し店舗・貸し事務所 足立区鹿浜(5階)36.62坪
貸店舗
貸事務所
29.70
万円
36.63坪
貸し店舗・貸し事務所 足立区鹿浜(5階)36.62坪
貸し店舗・貸し事務所 東京都足立区鹿浜8(4・5階) 73.26坪
貸店舗
貸事務所
59.40
万円
73.26坪
貸し店舗・貸し事務所 東京都足立区鹿浜8(4・5階) 73.26坪
貸し店舗・事務所 東京都足立区鹿浜8(4階) 36.62坪
貸店舗
貸事務所
29.70
万円
36.63坪
貸し店舗・事務所 東京都足立区鹿浜8(4階) 36.62坪
貸し店舗・貸し事務所 東京都足立区鹿浜8(1階・中2階・4階) 60.21坪
貸倉庫
貸店舗
51.70
万円
60.21坪
貸し店舗・貸し事務所 東京都足立区鹿浜8(1階・中2階・4階) 60.21坪
貸し店舗・貸し事務所 東京都足立区鹿浜8(1階・中2階・5階) 60.21坪
貸店舗
貸事務所
51.70
万円
60.21坪
貸し店舗・貸し事務所 東京都足立区鹿浜8(1階・中2階・5階) 60.21坪
貸し店舗・貸し事務所 東京都足立区鹿浜8(1階・中2階・4階・5階) 96.84坪
貸倉庫
貸店舗
81.40
万円
96.84坪
貸し店舗・貸し事務所 東京都足立区鹿浜8(1階・中2階・4階・5階) 96.84坪
貸し倉庫・貸し事務所 東京都葛飾区堀切1 71.39坪
貸倉庫
貸工場
35.00
万円
71.39坪
貸し倉庫・貸し事務所 東京都葛飾区堀切1 71.39坪
おすすめ
貸し倉庫 八潮市大字二丁目 361坪
貸倉庫
178.84
万円
361.29坪
貸し倉庫 八潮市大字二丁目 361坪
貸し倉庫 千葉県佐倉市太田 411坪(スペース貸)
貸倉庫
194.41
万円
411.00坪
貸し倉庫 千葉県佐倉市太田 411坪(スペース貸)
貸し店舗 千葉県九十九里町片貝(シーサイドモール内) 340.5坪
貸店舗
132.00
万円
340.31坪
貸し店舗 千葉県九十九里町片貝(シーサイドモール内) 340.5坪
貸し事務所・貸し作業所 千葉市稲毛区園生町 106.22坪
貸倉庫
44.44
万円
106.22坪
貸し事務所・貸し作業所 千葉市稲毛区園生町 106.22坪
貸し店舗 千葉県山武市埴谷 30坪
貸店舗
13.20
万円
30.00坪
貸し店舗 千葉県山武市埴谷 30坪
