貸倉庫 貸倉庫 東京都足立区辰沼 約206.91坪
基本情報
賃料/管理費 | 110.00 万円 / 150円 |
---|---|
保証金・敷金 | 3ヶ月 |
礼金 | 2ヶ月 |
建物階 | 地上2階 |
所在階 | 1階~2階部分 |
住所 | 東京都 足立区 辰沼 |
---|---|
最寄り駅 |
東京メトロ千代田線 北綾瀬駅(徒歩24分)
つくばエクスプレス 六町駅(徒歩25分)
|
最寄りインター | -- |
構造 | 鉄骨造 |
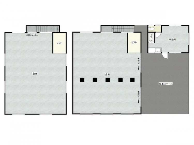
面積 | 206.91 坪 (684.0㎡) |
詳細物件情報
こだわり条件 |
|
---|---|
定期借家契約 | あり(詳細は物件詳細を参照) |
償却 | 解約時1ヶ月 |
接道 | -- |
幅員 | -- |
都市計画 | -- |
用途地域 | -- |
築年数 | 1980年12月 |
現状 | 使用中 |
引渡日 | 相談 |
取引様態 |
不動産会社様にはご紹介できない物件です。 媒介 |
物件詳細 | ◎用途/業種について: |
---|
この物件に問い合わせる

※お問い合わせの際は管理番号(00725147)をお伝えください。
所在地
他の物件も見てみる
同じ地域の他物件を探す
貸倉庫 東京都葛飾区小菅 約105.37坪

貸倉庫
110.00
万円
105.37坪
貸倉庫 東京都葛飾区小菅 約105.37坪
貸倉庫 東京都葛飾区小菅 約105.36坪

貸倉庫
110.00
万円
105.37坪
貸倉庫 東京都葛飾区小菅 約105.36坪
貸倉庫 東京都葛飾区西新小岩 約488.70坪

貸倉庫
500.00
万円
488.70坪
貸倉庫 東京都葛飾区西新小岩 約488.70坪
貸倉庫 東京都葛飾区新宿 約88.01坪

貸倉庫
132.00
万円
88.01坪
貸倉庫 東京都葛飾区新宿 約88.01坪
貸店舗 東京都葛飾区西新小岩 約59.10坪

貸店舗
貸事務所
66.00
万円
59.10坪
貸店舗 東京都葛飾区西新小岩 約59.10坪
貸し倉庫・貸し事務所 東京都葛飾区堀切1 71.39坪

貸倉庫
貸工場
35.00
万円
71.39坪
貸し倉庫・貸し事務所 東京都葛飾区堀切1 71.39坪
貸倉庫 東京都葛飾区金町 約101.01坪

貸倉庫
48.00
万円
101.01坪
貸倉庫 東京都葛飾区金町 約101.01坪
貸倉庫 東京都葛飾区宝町 約80.47坪

貸倉庫
60.00
万円
80.47坪
貸倉庫 東京都葛飾区宝町 約80.47坪
貸作業所 東京都葛飾区東四つ木 約87.05坪

貸倉庫
貸工場
198.00
万円
87.05坪
貸作業所 東京都葛飾区東四つ木 約87.05坪
貸倉庫 東京都葛飾区南水元 約42.00坪

貸倉庫
35.00
万円
42.00坪
貸倉庫 東京都葛飾区南水元 約42.00坪
おすすめ
貸し店舗 千葉県四街道市鹿渡(ASOビル1階③) 22.93坪

貸店舗
22.00
万円
22.93坪
貸し店舗 千葉県四街道市鹿渡(ASOビル1階③) 22.93坪
貸し倉庫・貸し作業所・貸し事務所 千葉県富津市川名 215.21坪

貸倉庫
貸工場
72.60
万円
215.21坪
貸し倉庫・貸し作業所・貸し事務所 千葉県富津市川名 215.21坪
貸し倉庫・貸し事務所・貸し店舗 埼玉県熊谷市本石1 178.22坪

貸倉庫
貸店舗
71.50
万円
178.23坪
貸し倉庫・貸し事務所・貸し店舗 埼玉県熊谷市本石1 178.22坪
貸し倉庫・作業所 千葉県東金市山田(山田倉庫№16) 約202坪

貸倉庫
貸工場
49.50
万円
201.92坪
貸し倉庫・作業所 千葉県東金市山田(山田倉庫№16) 約202坪
【定借】貸し店舗・貸し事務所・貸し寮 東京都板橋区前野町1(ベネッセ棟) 530.96坪

貸店舗
貸事務所
408.84
万円
530.97坪
【定借】貸し店舗・貸し事務所・貸し寮 東京都板橋区前野町1(ベネッセ棟) 530.96坪