貸倉庫 貸倉庫 東京都葛飾区西亀有 約73.18坪
基本情報
| 賃料/管理費 | 38.50 万円 / -- |
|---|---|
| 保証金・敷金 | 2ヶ月 |
| 礼金 | 2ヶ月 |
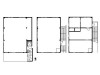
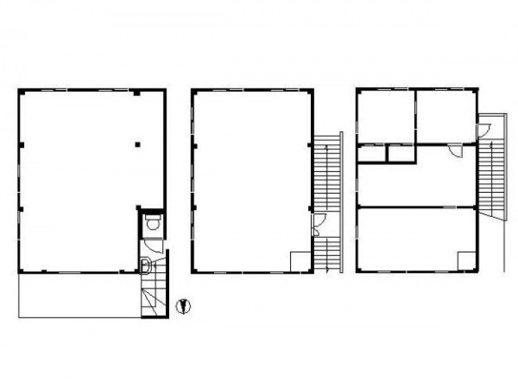
| 建物階 | 地上3階 |
| 所在階 | 1棟 |
| 住所 | 東京都 葛飾区 西亀有 |
|---|---|
| 最寄り駅 |
JR常磐線(上野~取手) 綾瀬駅(徒歩9分)
京成本線 堀切菖蒲園駅(徒歩26分)
|
| 最寄りインター | -- |
| 構造 | 鉄骨造 |
| 面積 | 73.18 坪 (241.92㎡) |
詳細物件情報
| こだわり条件 |
|
|---|---|
| 定期借家契約 | あり(詳細は物件詳細を参照) |
| 償却 | 無し |
| 接道 | -- |
| 幅員 | -- |
| 都市計画 | -- |
| 用途地域 | -- |
| 築年数 | 1973年5月 |
| 現状 | 空 |
| 引渡日 | 即時 |
| 取引様態 |
不動産会社様にはご紹介できない物件です。 -- |
| 物件詳細 | 1階:約80.64㎡、2階:約80.64㎡、3階:約80.64㎡ |
|---|
この物件に問い合わせる
※お問い合わせの際は管理番号(00726243)をお伝えください。
所在地
他の物件も見てみる
同じ地域の他物件を探す
貸し倉庫・貸し事務所 東京都葛飾区新小岩3 36.38坪
貸倉庫
貸事務所
33.00
万円
36.38坪
貸し倉庫・貸し事務所 東京都葛飾区新小岩3 36.38坪
貸し地 東京都足立区入谷2 29.56坪
土地
6.60
万円
29.56坪
貸し地 東京都足立区入谷2 29.56坪
貸倉庫 東京都足立区鹿浜 約43.92坪
貸倉庫
49.20
万円
43.92坪
貸倉庫 東京都足立区鹿浜 約43.92坪
貸倉庫 東京都足立区入谷 約59.46坪
貸倉庫
37.50
万円
59.46坪
貸倉庫 東京都足立区入谷 約59.46坪
貸し倉庫・貸し事務所 東京都葛飾区堀切1 71.39坪
貸倉庫
貸工場
30.00
万円
71.39坪
貸し倉庫・貸し事務所 東京都葛飾区堀切1 71.39坪
貸店舗 東京都葛飾区西水元 約45.07坪
貸店舗
60.00
万円
45.07坪
貸店舗 東京都葛飾区西水元 約45.07坪
貸倉庫 東京都足立区谷中 約58.09坪
貸倉庫
貸事務所
53.00
万円
58.10坪
貸倉庫 東京都足立区谷中 約58.09坪
貸倉庫 東京都足立区入谷 約132.59坪
貸倉庫
77.00
万円
132.59坪
貸倉庫 東京都足立区入谷 約132.59坪
貸倉庫 東京都葛飾区東新小岩 約128.37坪
貸倉庫
55.00
万円
128.37坪
貸倉庫 東京都葛飾区東新小岩 約128.37坪
貸倉庫 東京都足立区新田 約30.66坪
貸倉庫
33.00
万円
30.66坪
貸倉庫 東京都足立区新田 約30.66坪
おすすめ
【定借】貸し工場・貸し倉庫 埼玉県入間郡竹間沢(2階) 132.31坪
貸倉庫
貸工場
30.00
万円
132.31坪
【定借】貸し工場・貸し倉庫 埼玉県入間郡竹間沢(2階) 132.31坪
貸し倉庫 千葉県柏市小青田 897坪
貸倉庫
相談
897.72坪
貸し倉庫 千葉県柏市小青田 897坪
貸し倉庫・貸し事務所 東京都江戸川区江戸川6 238.34坪
貸倉庫
貸事務所
198.00
万円
238.35坪
貸し倉庫・貸し事務所 東京都江戸川区江戸川6 238.34坪
【定借】貸し事務所 東京都江戸川区江戸川6(アイエスビル4階) 12.1坪
貸事務所
7.15
万円
12.10坪
【定借】貸し事務所 東京都江戸川区江戸川6(アイエスビル4階) 12.1坪
貸し倉庫・貸し事務所 東京都江戸川区江戸川6 358.83坪
貸倉庫
貸事務所
237.60
万円
358.84坪
貸し倉庫・貸し事務所 東京都江戸川区江戸川6 358.83坪
