売倉庫 ビル 収益 売り倉庫・売りビル 埼玉県鶴ヶ島市脚折 313.23坪
基本情報
| 価格 |
6,500
万円
|
|---|---|
| 想定利回り |
9.74%
※必ずしも利益を保証するものではありません |
| 建物階 | 地上3階 |
| 所在階 | 一棟 |
| 住所 | 埼玉県 鶴ヶ島市 脚折町 1855-2 |
|---|---|
| 最寄り駅 |
東武東上線 坂戸駅(徒歩30分)
|
| 最寄りインター | -- |
| 構造 | 鉄骨造 |
| 面積 | 313.24 坪 (1035.50㎡) |
詳細物件情報
| こだわり条件 |
|
|---|---|
| 敷地面積 | 192.89 坪 (637.65㎡) |
| 敷地の権利形態 | 所有権 |
| 私道面積 | -- |
| セットバック | -- |
| 地目 | 宅地 |
| 建ぺい率 | 60% |
| 容積率 | 200% |
| その他、法令上の制限など | 調査中 |
| 接道 | 角地 |
| 幅員 | 日光街道沿いm |
| 都市計画 | 市街化区域 |
| 用途地域 | 第一種住居地域 |
| 築年数 | 1980年10月 |
| 現状 | 賃貸中 |
| 引渡日 | 相談 |
| 取引様態 | 専任 |
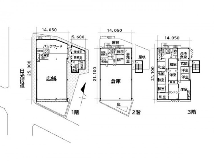
| 物件詳細 | ■想定年収:6,328,884円/表面利回り:9.74% ※税込み価格となります。 ※満室想定年収は、満室時における1年間の予定収入です。 ※当社は、想定賃料が確実に得られることを保証できません。 ※想定年収は、公租公課・地代その他当該物件を維持するために 必要な経費の控除する前の収入で計算しております。 ※オーナーチェンジ物件につき、現賃貸借契約継承が条件となります。 ※1.2階:法人契約・3階:個人契約 ■建物面積詳細/1階:400.25㎡(121.07坪) 2階:316.96㎡(95.88坪) 3階:318.29㎡(96.28坪) 合計:1035.5㎡(313.23坪) |
|---|
この物件に問い合わせる
※お問い合わせの際は管理番号(00080638)をお伝えください。
所在地
おすすめ
売り倉庫・売り戸建 埼玉県坂戸市紺屋660他 739.72坪
売倉庫
収益
20,000
万円
739.72坪
売り倉庫・売り戸建 埼玉県坂戸市紺屋660他 739.72坪
【収益】売りマンション 東京都江戸川区西小松川町 54.48坪
収益
7,065
万円
54.50坪
【収益】売りマンション 東京都江戸川区西小松川町 54.48坪
売りマンション 千葉県松戸市和名ケ谷953-1 ウィズ松戸きらめきの森 33.50坪
アパート/マンション(一棟)
3,580
万円
33.50坪
売りマンション 千葉県松戸市和名ケ谷953-1 ウィズ松戸きらめきの森 33.50坪
売り倉庫・売り事務所 埼玉県草加市弁天2 143.20坪
売倉庫
売事務所
7,200
万円
143.20坪
売り倉庫・売り事務所 埼玉県草加市弁天2 143.20坪
売り倉庫・売り事務所 東京都練馬区田柄2 239.42坪
売倉庫
売事務所
39,800
万円
239.43坪
売り倉庫・売り事務所 東京都練馬区田柄2 239.42坪
